18/38
Paylaş
Resmi Orjinal Boyutunda Göster
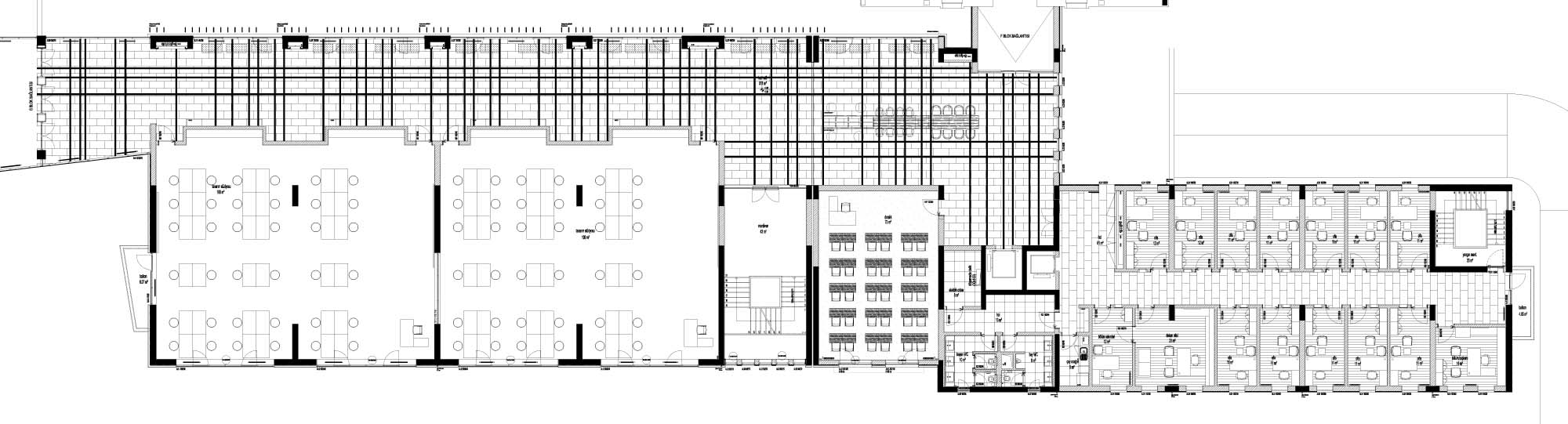
TED Üniversitesi C-D-E-F-G-H Blokları İç Mekan Tasarımı
Project Location: Ankara, Çankaya
Project Office: Craft312 Studio
Project Type: Higher Education Building
Proje Tipi Grubu: Eğitim
Tasarım Ekibi: Onur Karlıdağ, Deniz Ertek Karlıdağ
Employer: TED Üniversitesi
Ana Yüklenici: TED Üniversitesi
Peyzaj Mimarlığı: Craft312 Studio
Photography: Craft312 Studio
Architectural Supervision: Craft312 Studio
Project Start Date: 2014
Project End Date: 2015
Construction Start Date: 2014
Construction End Date: 2017
Building Plot Area: 15,500 m2
Total Construction Area: 40,000 m²