20/38
Paylaş
Resmi Orjinal Boyutunda Göster
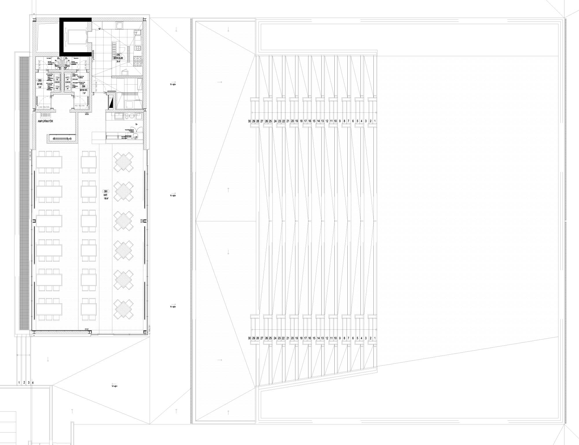
TED Üniversitesi C-D-E-F-G-H Blokları İç Mekan Tasarımı
Proje Yeri: Ankara, Çankaya
Proje Ofisi: Craft312 Studio
Proje Tipi: Yüksek Öğretim Yapısı
Proje Tipi Grubu: Eğitim
Tasarım Ekibi: Onur Karlıdağ, Deniz Ertek Karlıdağ
İşveren: TED Üniversitesi
Ana Yüklenici: TED Üniversitesi
Peyzaj Mimarlığı: Craft312 Studio
Fotoğraf: Craft312 Studio
Mimari Mesleki Kontrollük: Craft312 Studio
Proje Başlangıç Yılı: 2014
Proje Bitiş Yılı: 2015
İnşaat Başlangıç Yılı: 2014
İnşaat Bitiş Yılı: 2017
Arsa Alanı: 15,500 m2
Toplam İnşaat Alanı: 40,000 m²