18/29
Paylaş
Resmi Orjinal Boyutunda Göster
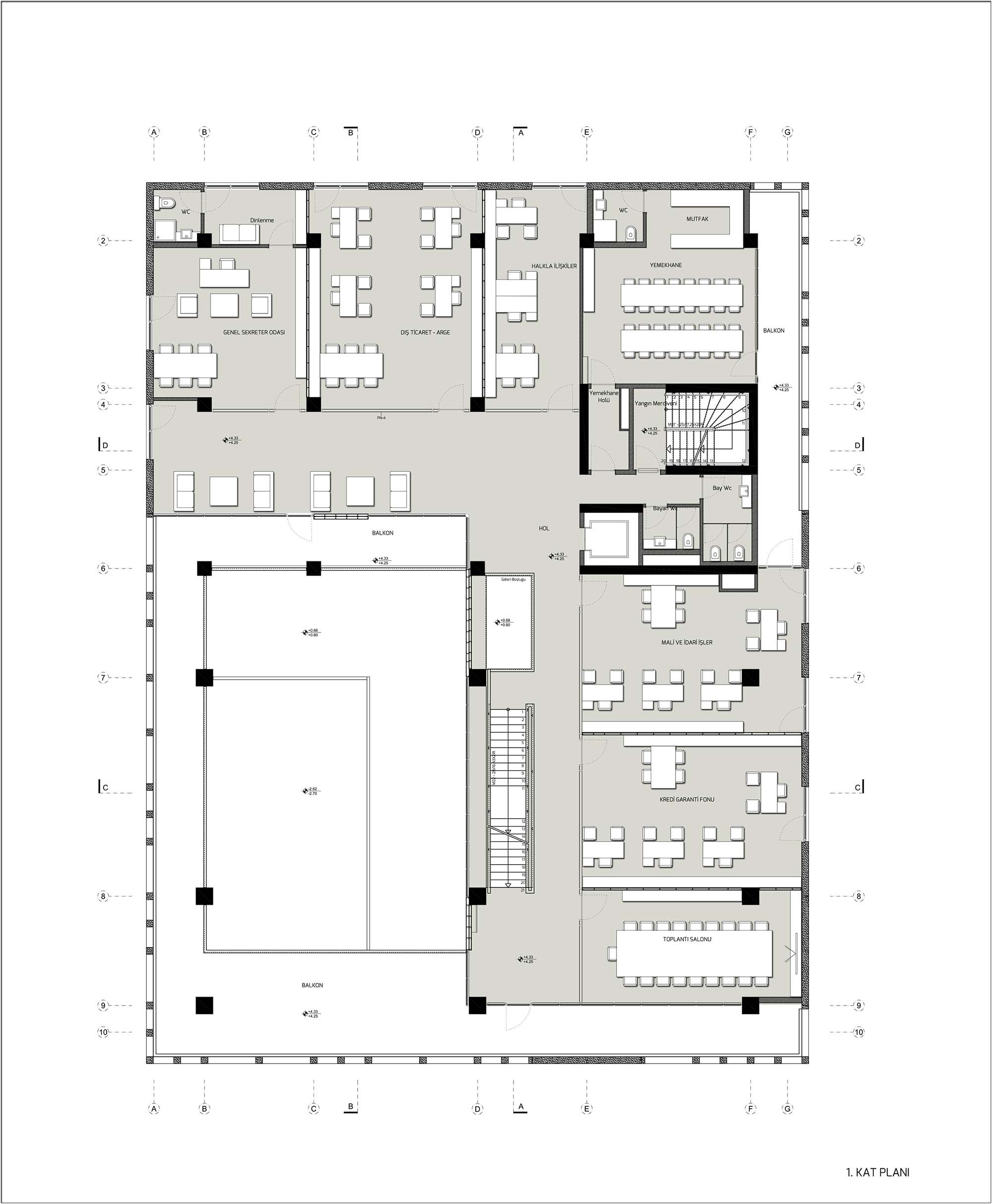
Bodrum Ticaret Odası Hizmet Binası
Project Location: Bodrum, Muğla
Project Office: Stüdyo501
Project Type: Offices
Proje Tipi Grubu: Kamu
Tasarım Ekibi: Cenk Çeşmeli, Müge Erkılıç
Employer: Bodrum Ticaret Odası (BODTO)
Ana Yüklenici: Durum Yapı
Structural Project: HF Çeşmeli Mühendislik
Mechanical Project: Duru Mekanik
Electrical Project: Emtes Elektrik
Photography: Taylan Gürel
Project Start Date: 2015
Project End Date: 2015
Construction Start Date: 2016
Construction End Date: 2017
Building Plot Area: 1.800 m²
Total Construction Area: 3.066 m2