19/29
Paylaş
Resmi Orjinal Boyutunda Göster
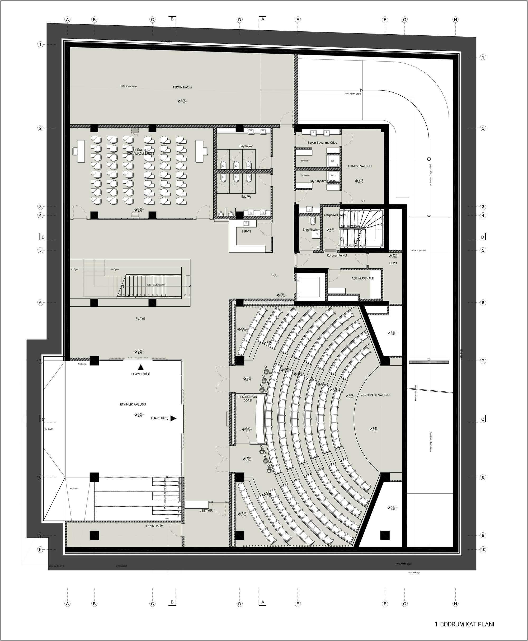
Bodrum Ticaret Odası Hizmet Binası
Proje Yeri: Bodrum, Muğla
Proje Ofisi: Stüdyo501
Proje Tipi: Ofis
Proje Tipi Grubu: Kamu
Tasarım Ekibi: Cenk Çeşmeli, Müge Erkılıç
İşveren: Bodrum Ticaret Odası (BODTO)
Ana Yüklenici: Durum Yapı
Statik Projesi: HF Çeşmeli Mühendislik
Mekanik Projesi: Duru Mekanik
Elektrik Projesi: Emtes Elektrik
Fotoğraf: Taylan Gürel
Proje Başlangıç Yılı: 2015
Proje Bitiş Yılı: 2015
İnşaat Başlangıç Yılı: 2016
İnşaat Bitiş Yılı: 2017
Arsa Alanı: 1.800 m²
Toplam İnşaat Alanı: 3.066 m2