11/33
Paylaş
Resmi Orjinal Boyutunda Göster
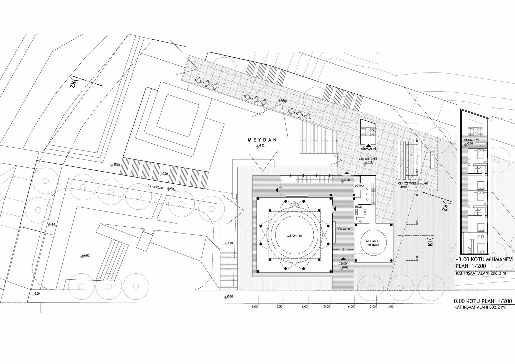
Sepin Mimarlık, Uzundere Cemevi Sosyokültürel Merkez Ulusal Mimari Fikir Projesi Yarışması
Proje Ofisi: Sepin Mimarlık
Proje Tipi: Cemevi, Kültür Merkezi
Proje Tipi Grubu: Katılımcı
Tasarım Ekibi: Yavuz Selim Sepin
Yardımcı: Aygül Ceylan, Bahadır Kantarcı