9/33
Paylaş
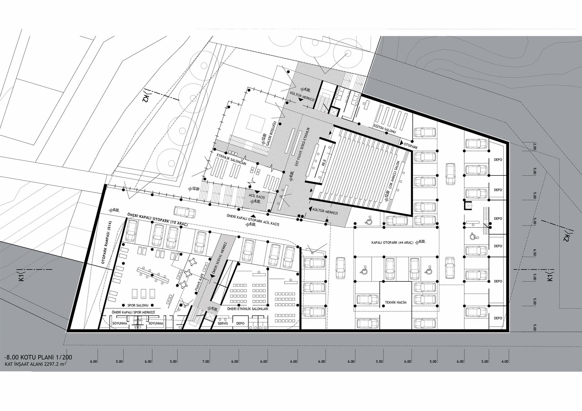
Resmi Orjinal Boyutunda Göster
Sepin Mimarlık, Uzundere Cemevi Sosyokültürel Merkez Ulusal Mimari Fikir Projesi Yarışması
Project Office: Sepin Mimarlık
Project Type: Cem House, Cultural Center
Proje Tipi Grubu: Katılımcı
Tasarım Ekibi: Yavuz Selim Sepin
Yardımcı: Aygül Ceylan, Bahadır Kantarcı