13/18
Paylaş
Resmi Orjinal Boyutunda Göster
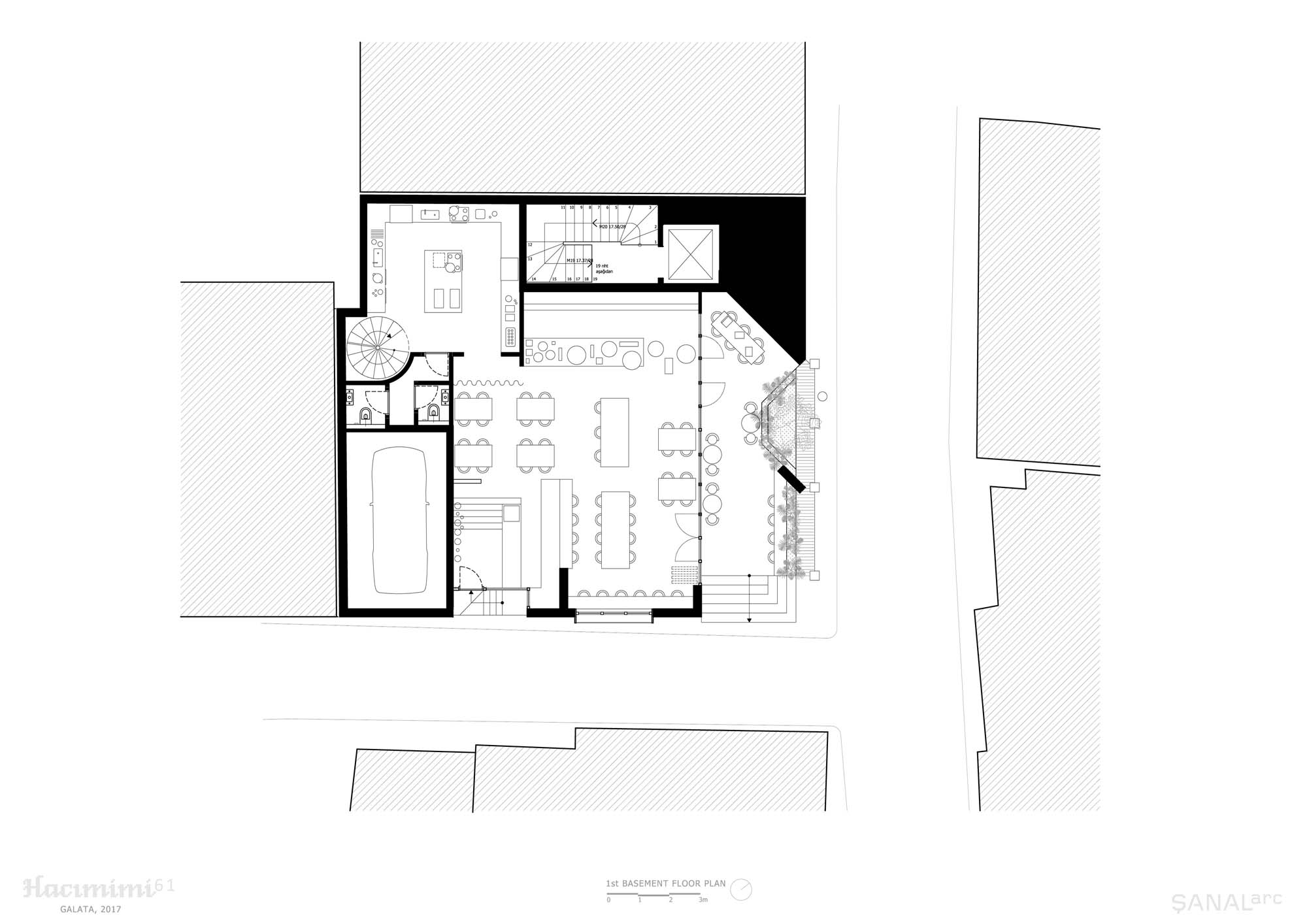
Galata61
Proje Yeri: Beyoğlu, İstanbul
Proje Ofisi: SANALarc Mimarlık, Araştırma ve Kentsel Tasarım
Proje Tipi: Apartman
Proje Tipi Grubu: Konut
Tasarım Ekibi: Murat Şanal, Alexis Şanal, Begüm Öner, Matyas Skardelli, Handan Akyürek
İşveren: SALT Gayrimenkul, BERKOLON
Ana Yüklenici: BERKOLON
Statik Projesi: Oran Mühendislik
Mekanik Projesi: Rota Mühendislik
Elektrik Projesi: Esan Mühendislik
Tesisat Projesi: Rota Mühendislik
Proje Başlangıç Yılı: 2016
Proje Bitiş Yılı: 2017
İnşaat Başlangıç Yılı: 2018
Arsa Alanı: 210 m²
Toplam İnşaat Alanı: 1,583 m2