14/18
Paylaş
Resmi Orjinal Boyutunda Göster
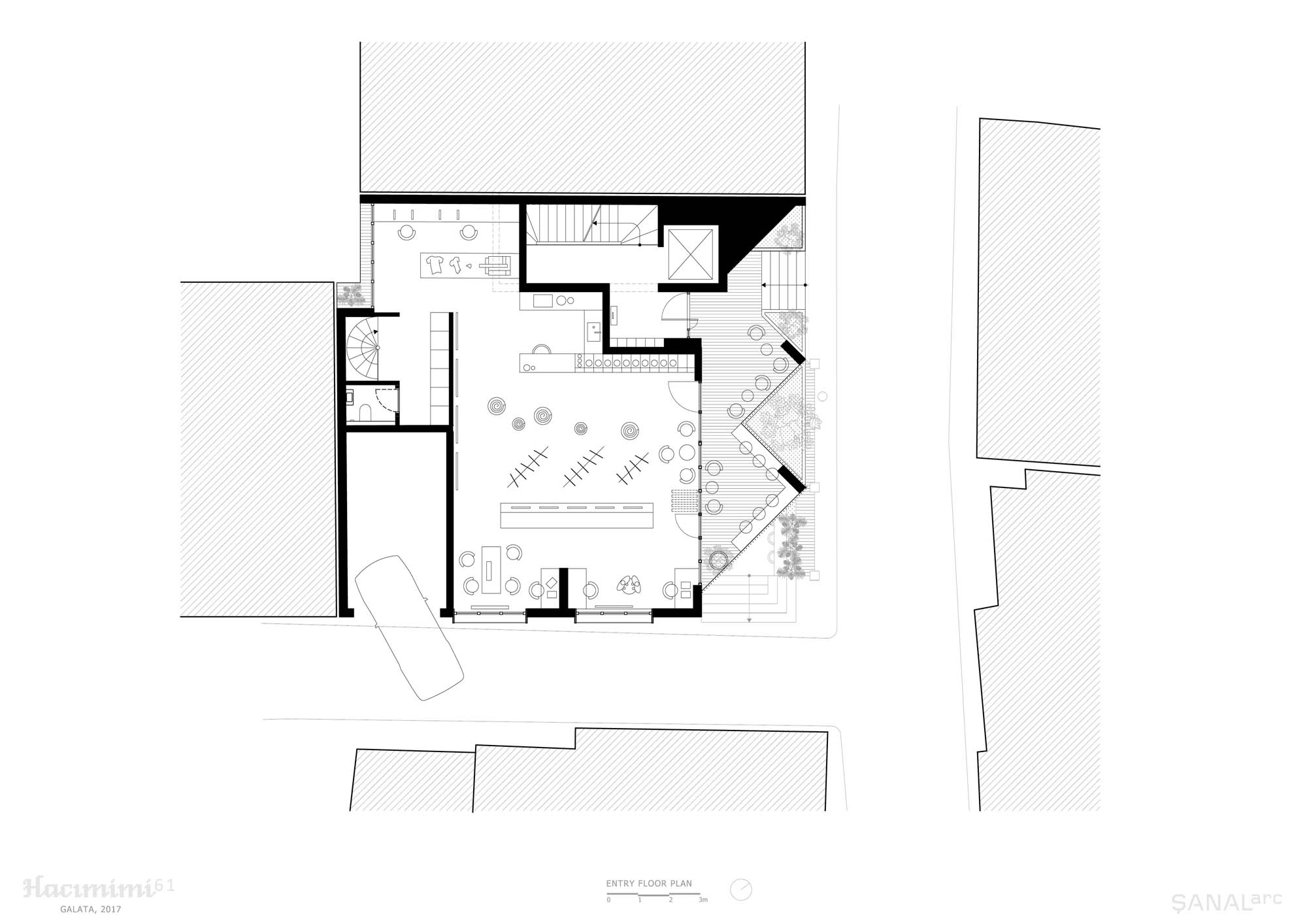
Galata61
Project Location: Beyoğlu, İstanbul
Project Office: SANALarc Mimarlık, Araştırma ve Kentsel Tasarım
Project Type: Apartment
Proje Tipi Grubu: Konut
Tasarım Ekibi: Murat Şanal, Alexis Şanal, Begüm Öner, Matyas Skardelli, Handan Akyürek
Employer: SALT Gayrimenkul, BERKOLON
Ana Yüklenici: BERKOLON
Structural Project: Oran Mühendislik
Mechanical Project: Rota Mühendislik
Electrical Project: Esan Mühendislik
Plumbing Project: Rota Mühendislik
Project Start Date: 2016
Project End Date: 2017
Construction Start Date: 2018
Building Plot Area: 210 m²
Total Construction Area: 1,583 m2