13/18
Paylaş
Resmi Orjinal Boyutunda Göster
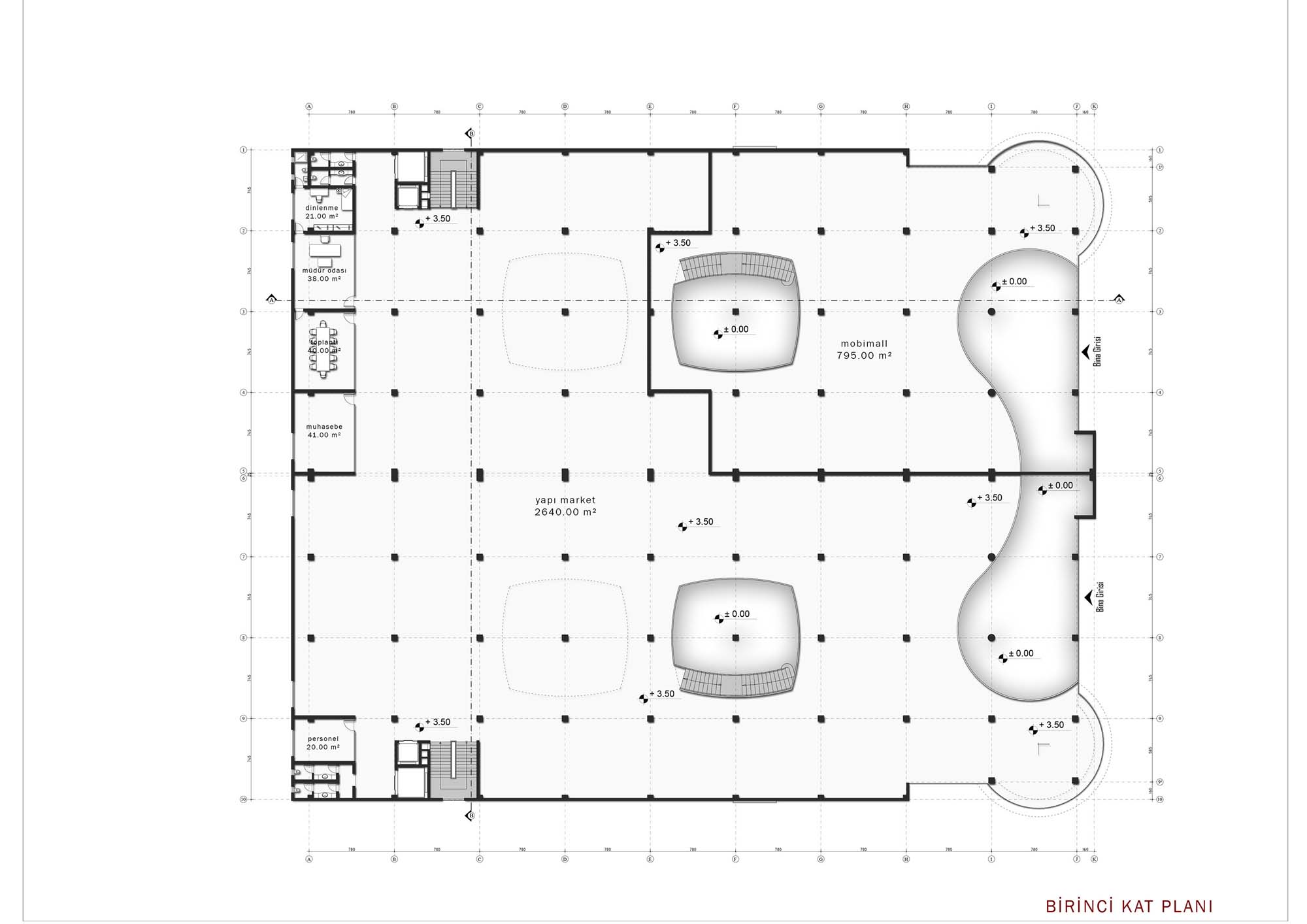
Mobimall
Proje Yeri: Tekkeköy, Samsun
Proje Ofisi: Başak Mimarlık
Proje Tipi: Alışveriş Merkezi
Proje Tipi Grubu: Ticari
Tasarım Ekibi: Cengiz Şentürk, Hakan Düzen, Büşra Karatay, Ceren Şentürk
Yardımcı: Betül Eroğlu, Kaan Şişman
Ana Yüklenici: Değerli Mobilya, Değerli sMobilya
Statik Projesi: Tek-Ar Mühendislik
Mekanik Projesi: Pekşen Mühendislik
Elektrik Projesi: Kefeli Elektrik
Proje Başlangıç Yılı: 2009
Proje Bitiş Yılı: 2009
İnşaat Başlangıç Yılı: 2009
İnşaat Bitiş Yılı: 2011
Arsa Alanı: 2,840 m²
Toplam İnşaat Alanı: 19,000 m2