15/18
Paylaş
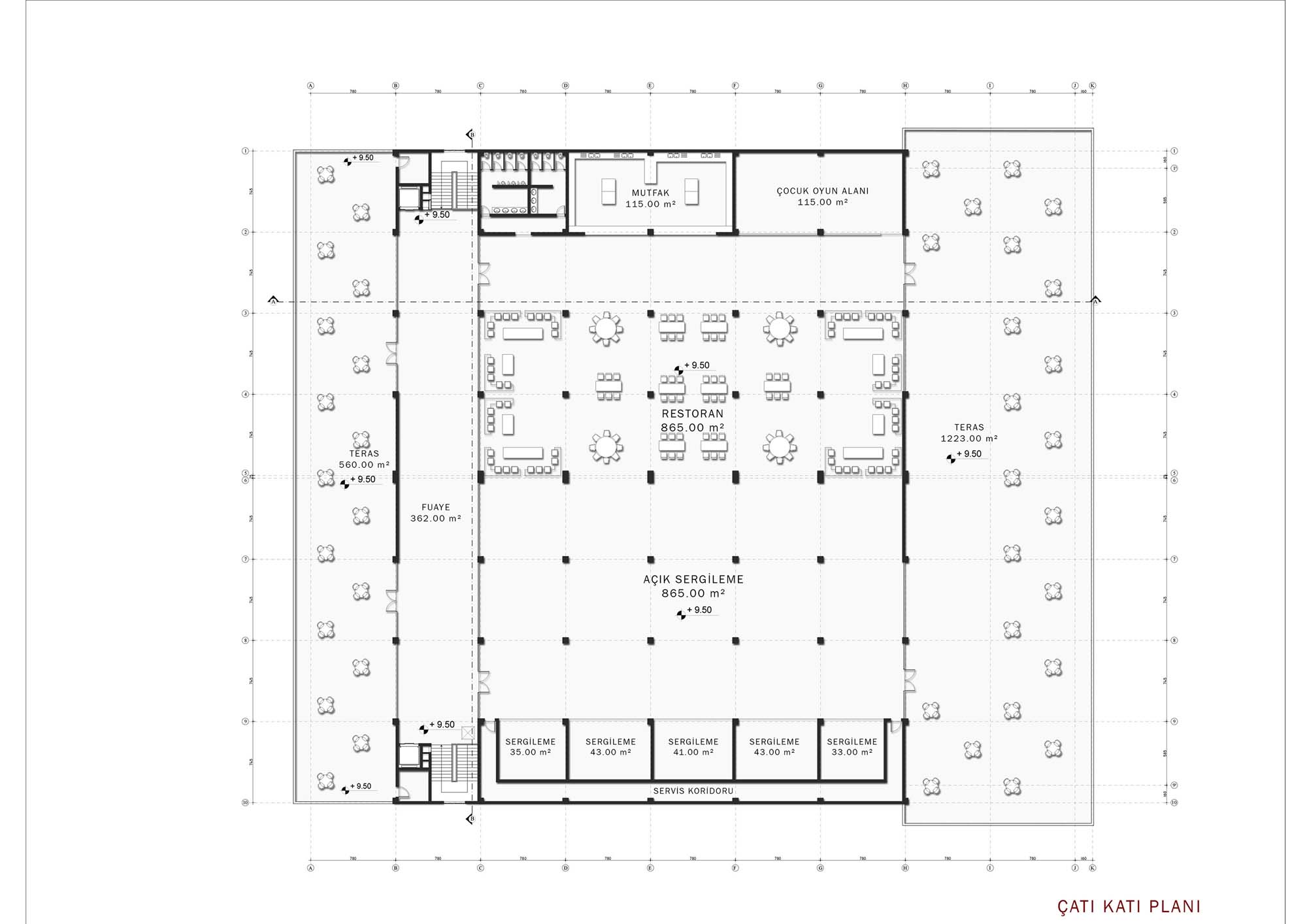
Resmi Orjinal Boyutunda Göster
Mobimall
Project Location: Tekkeköy, Samsun
Project Office: Başak Mimarlık
Project Type: Shopping Mall
Proje Tipi Grubu: Commercial
Tasarım Ekibi: Cengiz Şentürk, Hakan Düzen, Büşra Karatay, Ceren Şentürk
Yardımcı: Betül Eroğlu, Kaan Şişman
Ana Yüklenici: Değerli Mobilya, Değerli sMobilya
Structural Project: Tek-Ar Mühendislik
Mechanical Project: Pekşen Mühendislik
Electrical Project: Kefeli Elektrik
Project Start Date: 2009
Project End Date: 2009
Construction Start Date: 2009
Construction End Date: 2011
Building Plot Area: 2,840 m²
Total Construction Area: 19,000 m2