14/17
Paylaş
Resmi Orjinal Boyutunda Göster
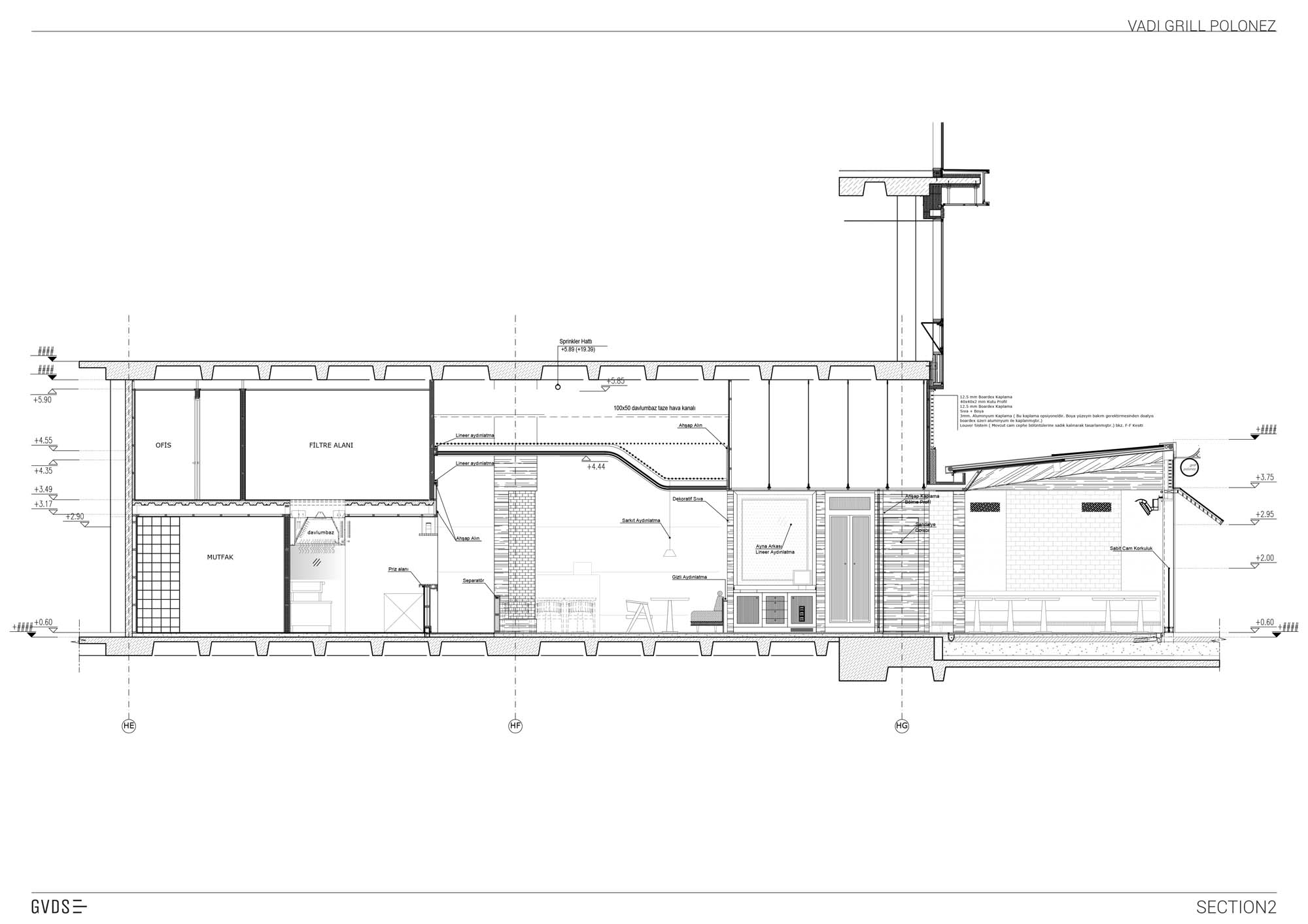
Grill Polonez Vadi İstanbul
Proje Yeri: Sarıyer, İstanbul
Proje Ofisi: Görkem Volkan Design Studio (GVDS)
Proje Tipi: Restoran / Kafe / Bar
Proje Tipi Grubu: Ticari
Tasarım Ekibi: Görkem Volkan, Demet Öğütler, Müge Karaşahin, Onur Çınar, Mehmet Karadeniz
İşveren: Modern Restoran ve Kafeterya İşletmeleri AŞ
Ana Yüklenici: Nova Reklam ve Dekorasyon
Proje Yöneticisi: Görkem Volkan, Demet Öğütler
Grafik Tasarım: Nova Reklam ve Dekorasyon
Statik Projesi: 2E Design Mühendislik
Mekanik Projesi: Gök-Ay Proje ve Mühendislik
Elektrik Projesi: Gök-Ay Proje ve Mühendislik
Tesisat Projesi: Gök-Ay Proje ve Mühendislik
Çelik Projesi: 2E Design Mühendislik
Altyapı Projesi: Gök-Ay Proje ve Mühendislik
Fotoğraf: Ali Bekman Photography
Şantiye Yöneticisi: Onur Çınar
Proje Başlangıç Yılı: 2017
Proje Bitiş Yılı: 2017
İnşaat Başlangıç Yılı: 2017
İnşaat Bitiş Yılı: 2018
Toplam İnşaat Alanı: 850 m²