15/17
Paylaş
Resmi Orjinal Boyutunda Göster
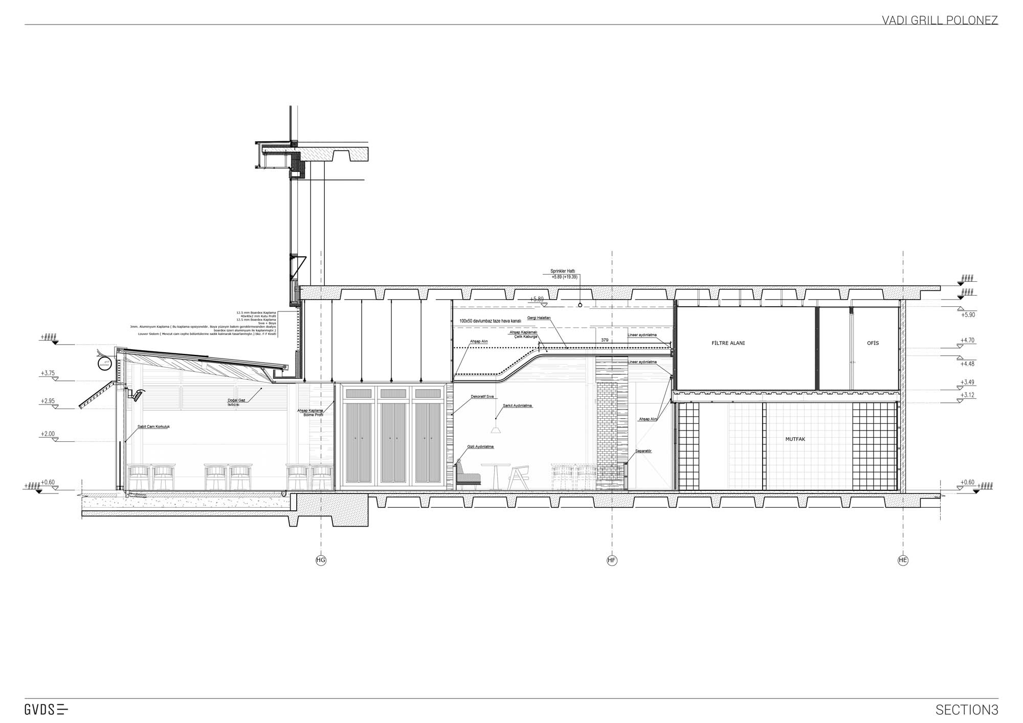
Grill Polonez Vadi İstanbul
Project Location: Sarıyer, İstanbul
Project Office: Görkem Volkan Design Studio (GVDS)
Project Type: Restaurant / Café / Bar
Proje Tipi Grubu: Commercial
Tasarım Ekibi: Görkem Volkan, Demet Öğütler, Müge Karaşahin, Onur Çınar, Mehmet Karadeniz
Employer: Modern Restoran ve Kafeterya İşletmeleri AŞ
Ana Yüklenici: Nova Reklam ve Dekorasyon
Projcet Manager: Görkem Volkan, Demet Öğütler
Grafik Tasarım: Nova Reklam ve Dekorasyon
Structural Project: 2E Design Mühendislik
Mechanical Project: Gök-Ay Proje ve Mühendislik
Electrical Project: Gök-Ay Proje ve Mühendislik
Plumbing Project: Gök-Ay Proje ve Mühendislik
Çelik Projesi: 2E Design Mühendislik
Altyapı Projesi: Gök-Ay Proje ve Mühendislik
Photography: Ali Bekman Photography
Construction Site Manager: Onur Çınar
Project Start Date: 2017
Project End Date: 2017
Construction Start Date: 2017
Construction End Date: 2018
Total Construction Area: 850 m²