44/51
Paylaş
Resmi Orjinal Boyutunda Göster
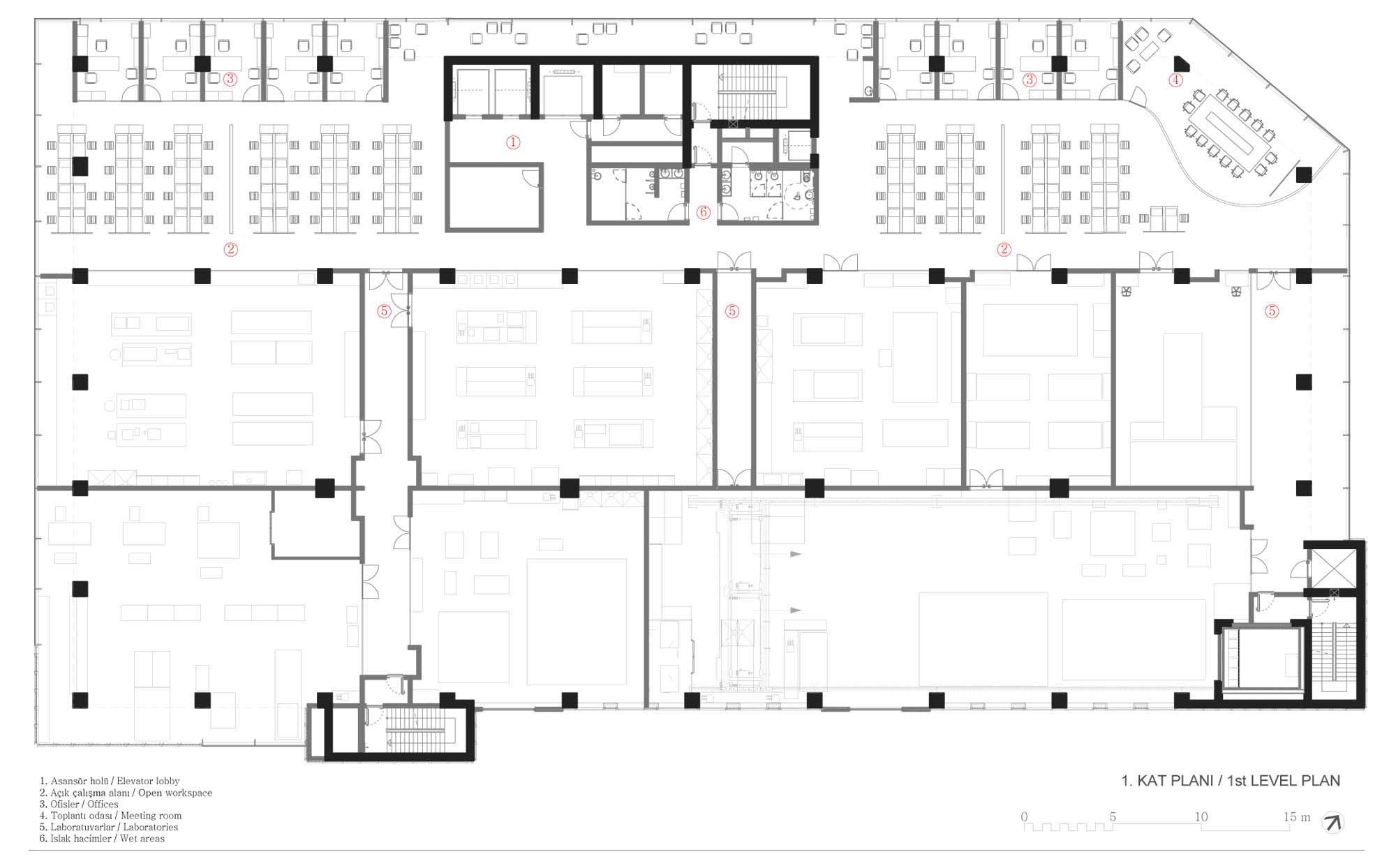
Kompozit Teknolojileri Mükemmeliyet Merkezi
Proje Yeri: İstanbul, Pendik
Proje Ofisi: Piramit Mimarlık
Proje Tipi: Ar-Ge Binası, Ofis
Proje Tipi Grubu: Ticari
Tasarım Ekibi: Mehmet Toydemir
İşveren: Kordsa Global
Peyzaj Mimarlığı: Spiga Peyzaj Proje Danışmanlık
İç Mekan Projesi: Ayşe Toydemir Chamuleau
Statik Projesi: Balkar Mühendislik
Mekanik Projesi: Detay Mühendislik
Elektrik Projesi: RT Mühendislik
Altyapı Projesi: Mesciooğlu Mühendislik
Akustik Projesi: MEA-akustik
Yangın Tahliye Projesi: Etik Mühendislik
Fotoğraf: Yercekim Mimari Fotograf
Proje Başlangıç Yılı: 2014
Proje Bitiş Yılı: 2015
İnşaat Başlangıç Yılı: 2015
İnşaat Bitiş Yılı: 2016
Toplam İnşaat Alanı: 17,000 m2