48/51
Paylaş
Resmi Orjinal Boyutunda Göster
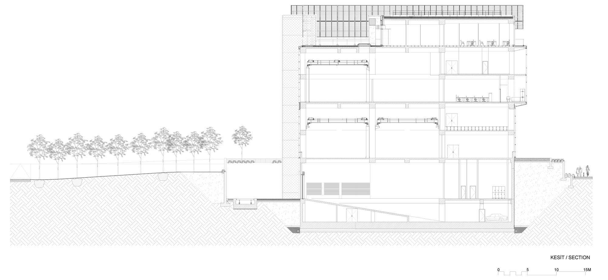
Kompozit Teknolojileri Mükemmeliyet Merkezi
Project Location: İstanbul, Pendik
Project Office: Piramit Mimarlık
Project Type: R&D Building, Offices
Proje Tipi Grubu: Commercial
Tasarım Ekibi: Mehmet Toydemir
Employer: Kordsa Global
Peyzaj Mimarlığı: Spiga Peyzaj Proje Danışmanlık
Interior Architecture: Ayşe Toydemir Chamuleau
Structural Project: Balkar Mühendislik
Mechanical Project: Detay Mühendislik
Electrical Project: RT Mühendislik
Altyapı Projesi: Mesciooğlu Mühendislik
Akustik Projesi: MEA-akustik
Yangın Tahliye Projesi: Etik Mühendislik
Photography: Yercekim Mimari Fotograf
Project Start Date: 2014
Project End Date: 2015
Construction Start Date: 2015
Construction End Date: 2016
Total Construction Area: 17,000 m2