11/23
Paylaş
Resmi Orjinal Boyutunda Göster
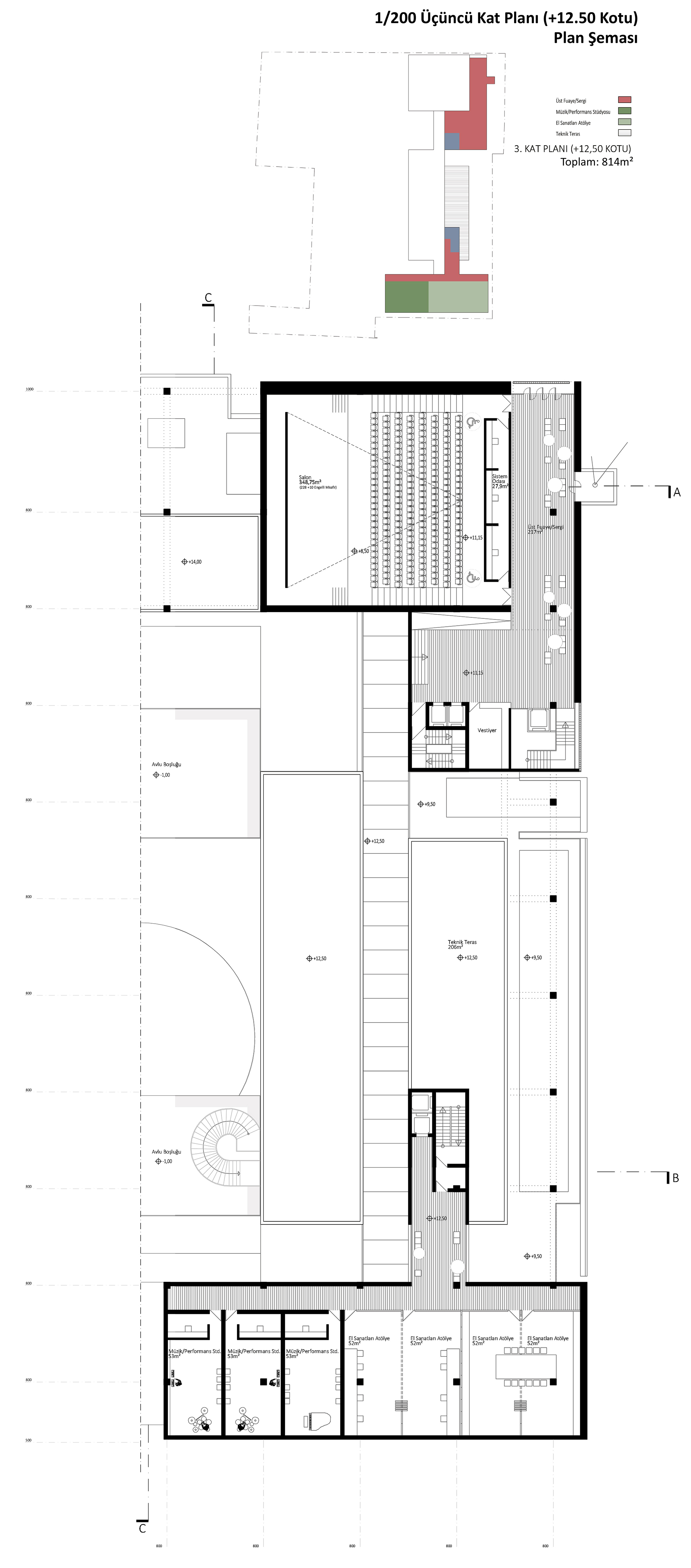
Eşdeğer Mansiyon (BUDA Mimarlık), Çanakkale Belediyesi Çarşı, Yaşam Merkezi ve Otopark ile Yakın Çevresi Mimari Proje Yarışması
Proje Yeri: Çanakkale
Proje Ofisi: Buda Mimarlık
Proje Tipi: Sosyal Tesis, Kültür Merkezi
Proje Tipi Grubu: Eşdeğer Mansiyon
Tasarım Ekibi: Burak Pelenk, İbrahim Özvariş, Mehmet Murat Ergin
Yardımcı: Eda Yazkurt Pelenk, Damla İçyer, Halil Soysal Cirit, Birce Tülbez