8/23
Paylaş
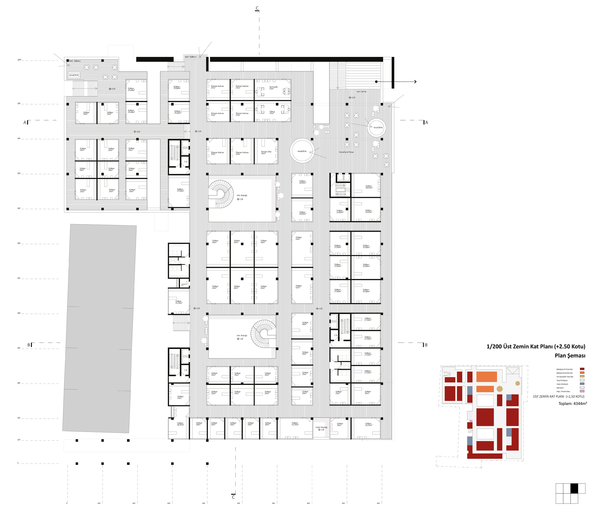
Resmi Orjinal Boyutunda Göster
Eşdeğer Mansiyon (BUDA Mimarlık), Çanakkale Belediyesi Çarşı, Yaşam Merkezi ve Otopark ile Yakın Çevresi Mimari Proje Yarışması
Project Location: Çanakkale
Project Office: Buda Mimarlık
Project Type: Social Facility, Cultural Center
Proje Tipi Grubu: Eşdeğer Mansiyon
Tasarım Ekibi: Burak Pelenk, İbrahim Özvariş, Mehmet Murat Ergin
Yardımcı: Eda Yazkurt Pelenk, Damla İçyer, Halil Soysal Cirit, Birce Tülbez