40/49
Paylaş
Resmi Orjinal Boyutunda Göster
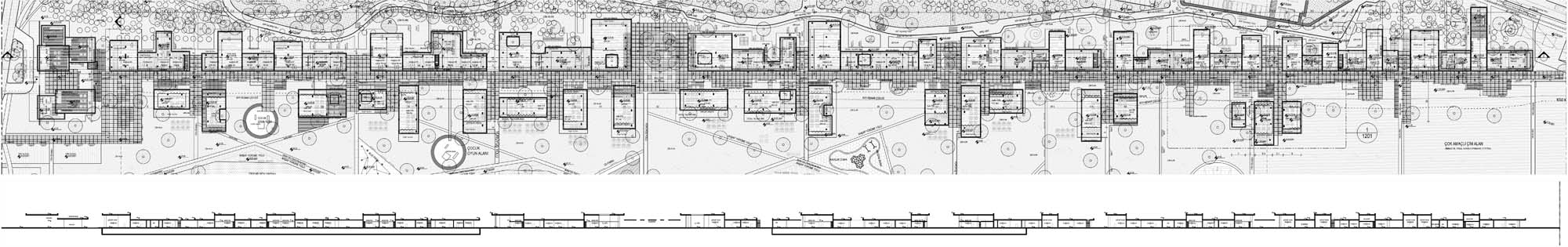
Antalya Konyaaltı Sahili Kentsel Tasarım Projesi
Proje Yeri: Antalya, Muratpaşa, Konyaaltı
Proje Ofisi: Özer/Ürger Mimarlık, Tugay Mimarlık
Proje Tipi: Kentsel Tasarım, Peyzaj
Proje Tipi Grubu: Kentsel Tasarım
Tasarım Ekibi: Ahmet Mucip Ürger, Ali Özer, Şemsettin Tugay, Olgu Çalışkan, Seda Gecü, İsmet Güngör, Elif Düzel, Neval Tarım, Beyza Derbentoğlu, Uğur Sarışen, Hasan Burak Hamurişçi, Buket Mucuk
İşveren: Antalya Büyükşehir Belediyesi
Danışman: Süveyda Bayraktar Atagür, Erdem Özlü
Peyzaj Mimarlığı: Özer/Ürger Mimarlık
Statik Projesi: EN Proje
Mekanik Projesi: STSO Enerji
Elektrik Projesi: UTK Elektrik
İnşaat Başlangıç Yılı: 2017
Arsa Alanı: 1,000,000 m2