45/49
Paylaş
Resmi Orjinal Boyutunda Göster
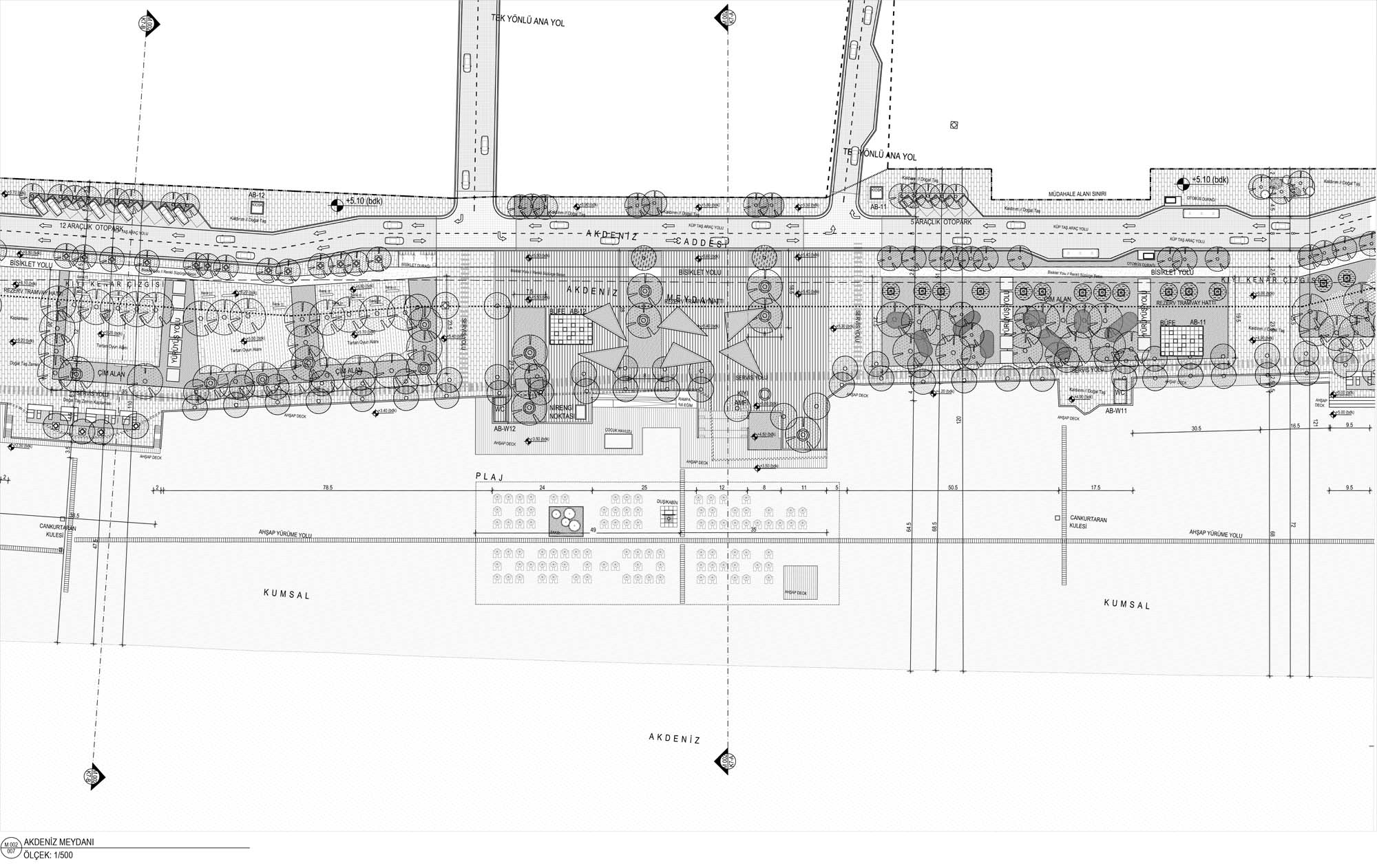
Antalya Konyaaltı Sahili Kentsel Tasarım Projesi
Project Location: Antalya, Muratpaşa, Konyaaltı
Project Office: Özer/Ürger Mimarlık, Tugay Mimarlık
Project Type: Urban Design, Landscape Architecture
Proje Tipi Grubu: Urban Design
Tasarım Ekibi: Ahmet Mucip Ürger, Ali Özer, Şemsettin Tugay, Olgu Çalışkan, Seda Gecü, İsmet Güngör, Elif Düzel, Neval Tarım, Beyza Derbentoğlu, Uğur Sarışen, Hasan Burak Hamurişçi, Buket Mucuk
Employer: Antalya Büyükşehir Belediyesi
Consultant: Süveyda Bayraktar Atagür, Erdem Özlü
Peyzaj Mimarlığı: Özer/Ürger Mimarlık
Structural Project: EN Proje
Mechanical Project: STSO Enerji
Electrical Project: UTK Elektrik
Construction Start Date: 2017
Building Plot Area: 1,000,000 m2