12/27
Paylaş
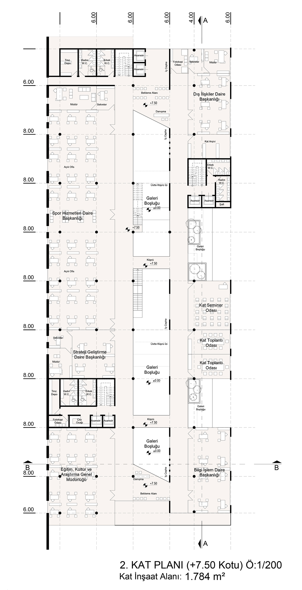
Resmi Orjinal Boyutunda Göster
Katılımcı (MEES Mimarlık), Kamu Binaları Tasarımı Fikir Yarışması Erzurum Gençlik ve Spor İl Müdürlüğü Hizmet Binası
Proje Yeri: Erzurum
Proje Ofisi: MEES Mimarlık
Proje Tipi: Diğer Kamu Yapıları
Proje Tipi Grubu: Katılımcı
Tasarım Ekibi: Mete Keskin, Esra Yılmaz Keskin
Yardımcı: Buse Ayvaz, Şehmus Arık, Seda Çetiner, Nejat Çankaya