13/27
Paylaş
Resmi Orjinal Boyutunda Göster
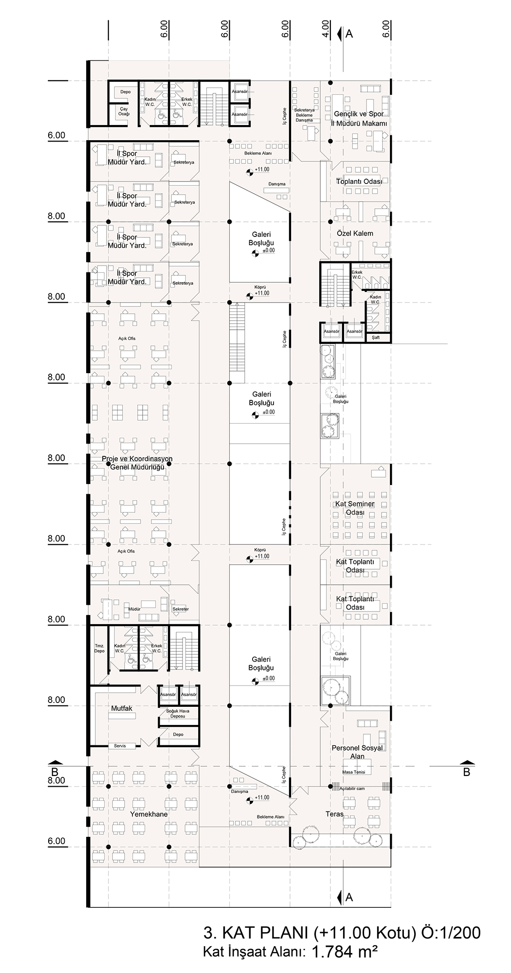
Katılımcı (MEES Mimarlık), Kamu Binaları Tasarımı Fikir Yarışması Erzurum Gençlik ve Spor İl Müdürlüğü Hizmet Binası
Project Location: Erzurum
Project Office: MEES Mimarlık
Project Type: Other Public Buildings
Proje Tipi Grubu: Katılımcı
Tasarım Ekibi: Mete Keskin, Esra Yılmaz Keskin
Yardımcı: Buse Ayvaz, Şehmus Arık, Seda Çetiner, Nejat Çankaya