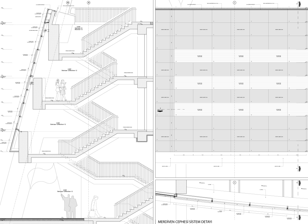
Sistem Kesiti
54/70
Paylaş
Resmi Orjinal Boyutunda Göster
Türk Telekom Arena
Proje Yeri: Seyrantepe, İstanbul
Proje Ofisi: ASP Architekten, MTF Proje (Mimari Tasarım Fikirleri)
Proje Tipi: Stadyum
Tasarım Ekibi: Mete Arat, Suna Konyalıoğlu, Cem Arat, Steffen Wahl, Rufus Nielsen, Eberhard Becker
İşveren: Galatasaray Spor Kulübü
Yardımcı: Tamer Nasifoğlu, Sebastian Gaiser, Florina Dietz, Melek Türkmen
Ana Yüklenici: Varyap – Uzunlar Ortak Girişimi
Peyzaj Mimarlığı: Cem Arat, Mete Arat
İç Mekan Projesi: Midek Mingü Mimarlık, SDB Mimarlık
Statik Projesi: İz Mühendislik, Yüksel Proje, Schlaich Bergermann und Partner Engineers
Mekanik Projesi: Ak Mühendislik, Obermeyer Planen + Beraten GmbH
Elektrik Projesi: Makro ABB, Obermeyer Planen + Beraten GmbH
Proje Başlangıç Yılı: 2006
Proje Bitiş Yılı: 2011
İnşaat Başlangıç Yılı: 2007
İnşaat Bitiş Yılı: 2011
Arsa Alanı: 150.000 m2, 190.000 m2