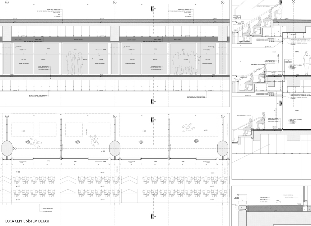
Sistem Kesiti
55/70
Paylaş
Resmi Orjinal Boyutunda Göster
Türk Telekom Arena
Project Location: Seyrantepe, İstanbul
Project Office: ASP Architekten, MTF Proje (Mimari Tasarım Fikirleri)
Project Type: Stadium/Arena
Tasarım Ekibi: Mete Arat, Suna Konyalıoğlu, Cem Arat, Steffen Wahl, Rufus Nielsen, Eberhard Becker
Employer: Galatasaray Spor Kulübü
Yardımcı: Tamer Nasifoğlu, Sebastian Gaiser, Florina Dietz, Melek Türkmen
Ana Yüklenici: Varyap – Uzunlar Ortak Girişimi
Peyzaj Mimarlığı: Cem Arat, Mete Arat
Interior Architecture: Midek Mingü Mimarlık, SDB Mimarlık
Structural Project: İz Mühendislik, Yüksel Proje, Schlaich Bergermann und Partner Engineers
Mechanical Project: Ak Mühendislik, Obermeyer Planen + Beraten GmbH
Electrical Project: Makro ABB, Obermeyer Planen + Beraten GmbH
Project Start Date: 2006
Project End Date: 2011
Construction Start Date: 2007
Construction End Date: 2011
Building Plot Area: 150.000 m2, 190.000 m2