39/48
Paylaş
Resmi Orjinal Boyutunda Göster
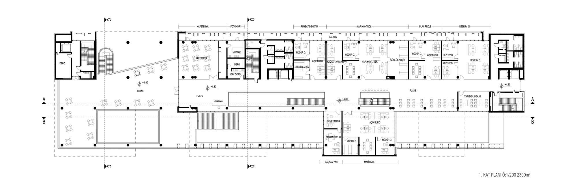
Mezitli Belediyesi Yeni Hizmet Binası
Project Location: Mersin, Mezitli
Project Office: İki Artı Bir Mimarlık
Project Type: Belediye Hizmet Binası
Proje Tipi Grubu: Kamu
Tasarım Ekibi: Ferhat Hacıalibeyoğlu, Deniz Dokgöz, Orhan Ersan
Employer: Mezitli Belediyesi
Yardımcı: Gülcan Afacan, Bora Örgülü, Ahsen Düşgün
Ana Yüklenici: Beton Yapı
Projcet Manager: Orhan Ersan
Structural Project: Methal Mühendislik
Mechanical Project: Ceymak Mühendislik
Electrical Project: Alya Mühendislik
Photography: Egemen Karakaya
Project Start Date: 2016
Project End Date: 2016
Construction Start Date: 2017
Construction End Date: 2018
Building Plot Area: 5,434 m2
Total Construction Area: 11,964 m2