42/48
Paylaş
Resmi Orjinal Boyutunda Göster
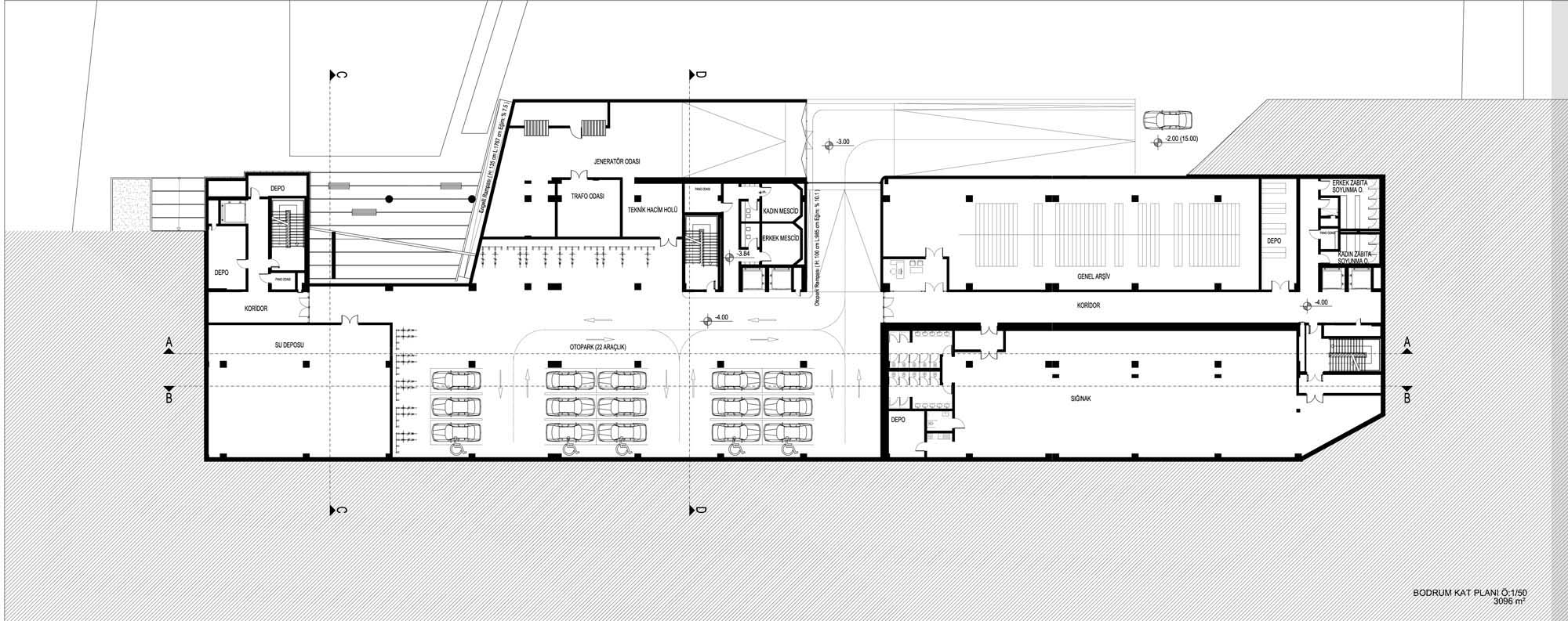
Mezitli Belediyesi Yeni Hizmet Binası
Proje Yeri: Mersin, Mezitli
Proje Ofisi: İki Artı Bir Mimarlık
Proje Tipi: Belediye Hizmet Binası
Proje Tipi Grubu: Kamu
Tasarım Ekibi: Ferhat Hacıalibeyoğlu, Deniz Dokgöz, Orhan Ersan
İşveren: Mezitli Belediyesi
Yardımcı: Gülcan Afacan, Bora Örgülü, Ahsen Düşgün
Ana Yüklenici: Beton Yapı
Proje Yöneticisi: Orhan Ersan
Statik Projesi: Methal Mühendislik
Mekanik Projesi: Ceymak Mühendislik
Elektrik Projesi: Alya Mühendislik
Fotoğraf: Egemen Karakaya
Proje Başlangıç Yılı: 2016
Proje Bitiş Yılı: 2016
İnşaat Başlangıç Yılı: 2017
İnşaat Bitiş Yılı: 2018
Arsa Alanı: 5,434 m2
Toplam İnşaat Alanı: 11,964 m2