47/57
Paylaş
Resmi Orjinal Boyutunda Göster
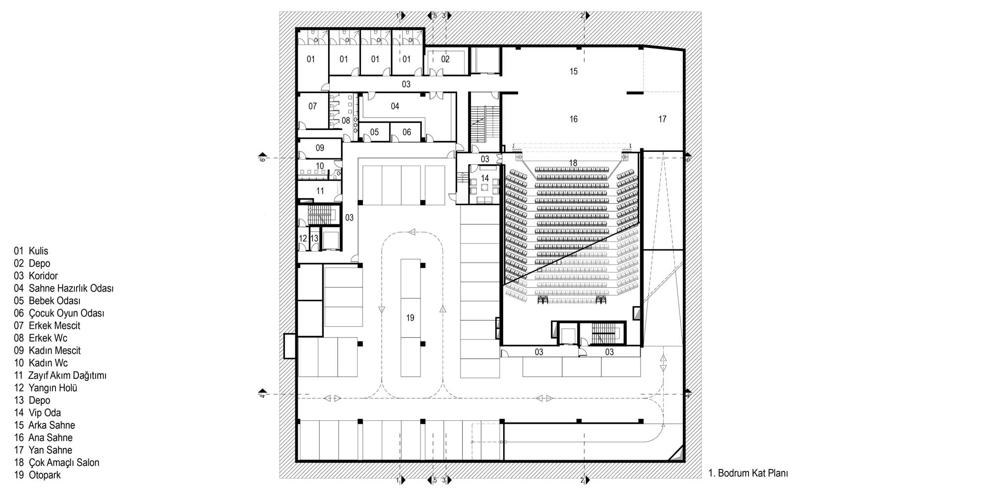
Türkan Şoray Kültür Merkezi
Proje Yeri: Muratpaşa, Antalya
Proje Ofisi: OfficePAN Mimarlık, Rasa Mimarlık, NODE Architects
Proje Tipi: Kültür Merkezi
Proje Tipi Grubu: Kültür
Tasarım Ekibi: Cihan Sevindik, Doğan Türkkan, Tuna Han Koç, Zeynep Canan Aksu
İşveren: Antalya Muratpaşa Belediyesi
Ana Yüklenici: Antalya Muratpaşa Belediyesi
Aydınlatma Projesi: Studio Lighting Design
Statik Projesi: Akıncı Mühendislik
Mekanik Projesi: G Mühendislik
Elektrik Projesi: Çakırtek Mühendislik
Akustik Projesi: Karakutu Akustik
Yangın Tahliye Projesi: Adal Yangın Güvenliği Tasarım ve Danışmanlık
Fotoğraf: Yercekim Mimari Fotograf
Mimari Mesleki Kontrollük: Cihan Sevindik, Doğan Türkkan, Tuna Han Koç, Zeynep Canan Aksu
Proje Başlangıç Yılı: 2015
Proje Bitiş Yılı: 2016
İnşaat Bitiş Yılı: 2018
Arsa Alanı: 3,353 m²
Toplam İnşaat Alanı: 8,348 m²