50/57
Paylaş
Resmi Orjinal Boyutunda Göster
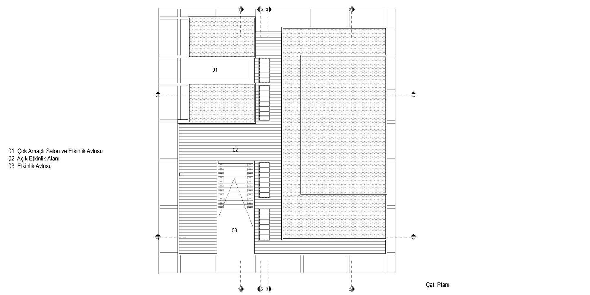
Türkan Şoray Kültür Merkezi
Project Location: Muratpaşa, Antalya
Project Office: OfficePAN Mimarlık, Rasa Mimarlık, NODE Architects
Project Type: Cultural Center
Proje Tipi Grubu: Kültür
Tasarım Ekibi: Cihan Sevindik, Doğan Türkkan, Tuna Han Koç, Zeynep Canan Aksu
Employer: Antalya Muratpaşa Belediyesi
Ana Yüklenici: Antalya Muratpaşa Belediyesi
Lighting Project: Studio Lighting Design
Structural Project: Akıncı Mühendislik
Mechanical Project: G Mühendislik
Electrical Project: Çakırtek Mühendislik
Akustik Projesi: Karakutu Akustik
Yangın Tahliye Projesi: Adal Yangın Güvenliği Tasarım ve Danışmanlık
Photography: Yercekim Mimari Fotograf
Architectural Supervision: Cihan Sevindik, Doğan Türkkan, Tuna Han Koç, Zeynep Canan Aksu
Project Start Date: 2015
Project End Date: 2016
Construction End Date: 2018
Building Plot Area: 3,353 m²
Total Construction Area: 8,348 m²