24/39
Paylaş
Resmi Orjinal Boyutunda Göster
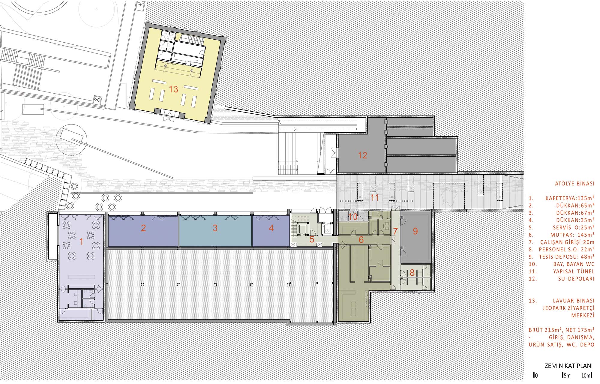
Üzülmez Kültür Vadisi
Proje Yeri: Zonguldak
Proje Ofisi: Buda Mimarlık
Proje Tipi: Kentsel Tasarım
Proje Tipi Grubu: Kültür
Tasarım Ekibi: Burak Pelenk, Eda Yazkurt Pelenk, Damla İçyer, Aydan Aytaç, Gülizar İlhan, Barancan Dağıstan
İşveren: Zonguldak Valiliği
Danışman: Artlite Mimarlık, Özgür Turan Akşa
Peyzaj Mimarlığı: Ata Turak
Statik Projesi: Viramer Mühendislik
Mekanik Projesi: Arkon Mekanik
Elektrik Projesi: ABM Mühendisli
Proje Başlangıç Yılı: 2018
Arsa Alanı: 10,670 m²
Toplam İnşaat Alanı: 2,850 m2