26/39
Paylaş
Resmi Orjinal Boyutunda Göster
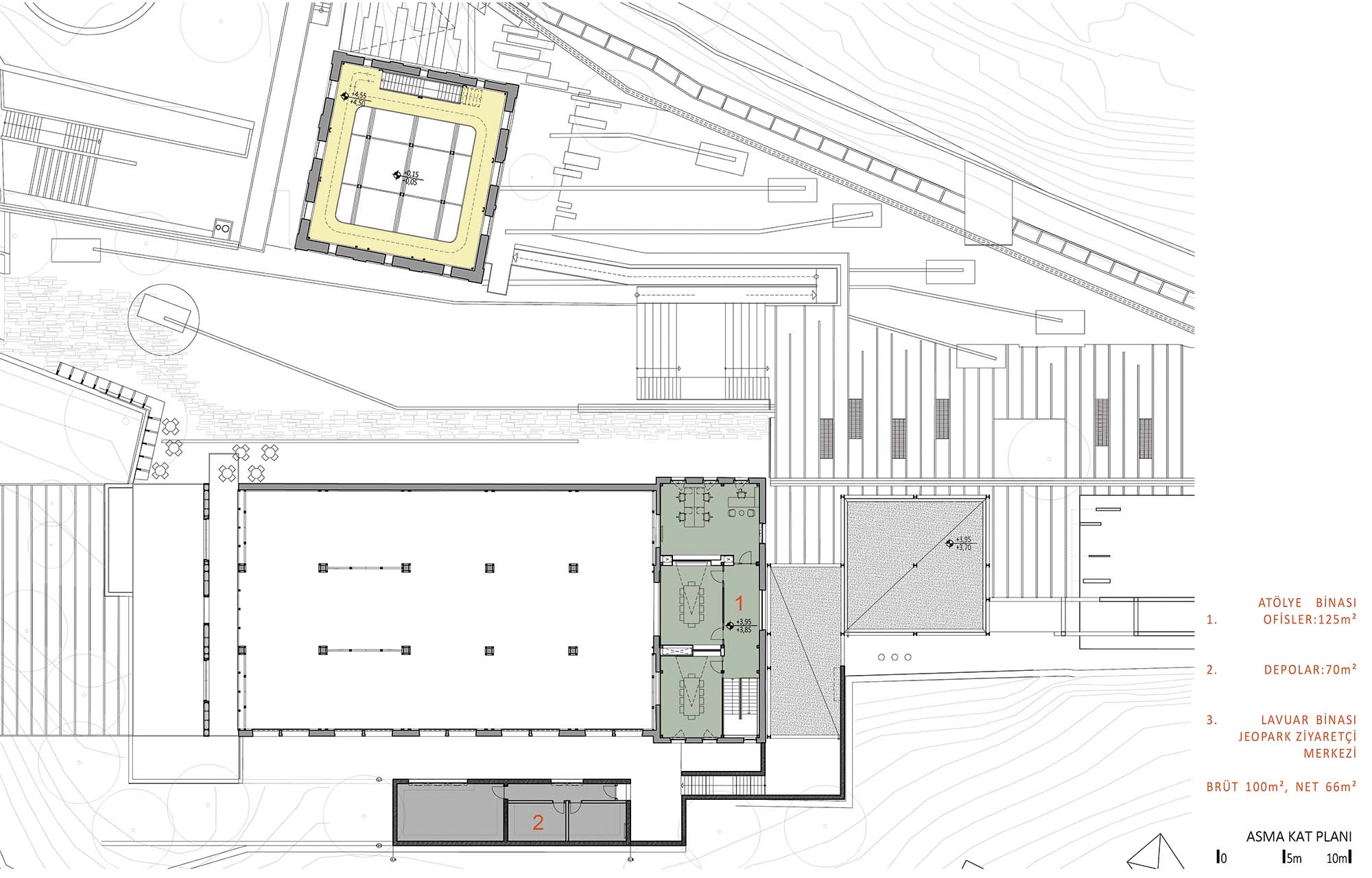
Üzülmez Kültür Vadisi
Project Location: Zonguldak
Project Office: Buda Mimarlık
Project Type: Urban Design
Proje Tipi Grubu: Kültür
Tasarım Ekibi: Burak Pelenk, Eda Yazkurt Pelenk, Damla İçyer, Aydan Aytaç, Gülizar İlhan, Barancan Dağıstan
Employer: Zonguldak Valiliği
Consultant: Artlite Mimarlık, Özgür Turan Akşa
Peyzaj Mimarlığı: Ata Turak
Structural Project: Viramer Mühendislik
Mechanical Project: Arkon Mekanik
Electrical Project: ABM Mühendisli
Project Start Date: 2018
Building Plot Area: 10,670 m²
Total Construction Area: 2,850 m2