51/62
Paylaş
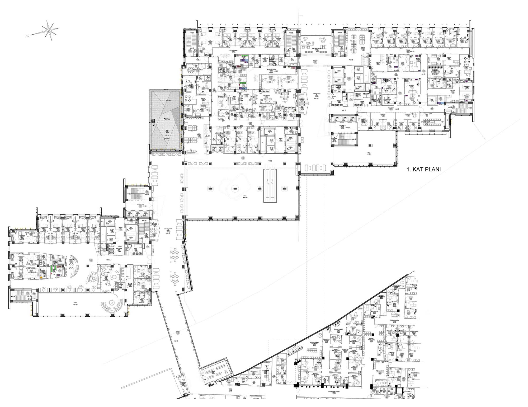
Resmi Orjinal Boyutunda Göster
Acıbadem Maslak 2. Etap Hastanesi
Proje Yeri: Sarıyer, İstanbul
Proje Ofisi: Lina Mimarlık
Proje Tipi: Hastane / Poliklinik
Proje Tipi Grubu: Sağlık
Tasarım Ekibi: Aylin Şensoy
İşveren: Acıbadem Sağlık Grubu
Danışman: Temel Baltaoğlu
Yardımcı: Gönül Keklik, Sinem Akbin, Farnaz Taghvimi, Özlem Erpek, Gülser Uzer
Ana Yüklenici: Acıbadem Proje Yönetimi
Peyzaj Mimarlığı: Spiga Peyzaj
İç Mekan Projesi: Metex Design Group
Proje Yöneticisi: Senem Bayraktar
Uygulama Projesi: Archistanbul
Cephe Tasarımı: BatesForum, Norm Mimarlık
Statik Projesi: Ülker Mühendislik
Mekanik Projesi: Acıbadem Proje Yönetimi
Elektrik Projesi: Acıbadem Proje Yönetimi
Tesisat Projesi: Acıbadem Proje Yönetimi
Çelik Projesi: Ülker Mühendislik
Akustik Danışmanı: MEA Akustik Danışmanlık
Yangın Güvenlik Danışmanı: Abdurahman Kılıç, Kazım Beceren
Fotoğraf: Cemal Emden
Şantiye Yöneticisi: Dilek Metin, Melik Küçük
Proje Başlangıç Yılı: 2016
Proje Bitiş Yılı: 2017
İnşaat Başlangıç Yılı: 2017
İnşaat Bitiş Yılı: 2018
Arsa Alanı: 17,909 m2
Toplam İnşaat Alanı: 64,000 m2