53/62
Paylaş
Resmi Orjinal Boyutunda Göster
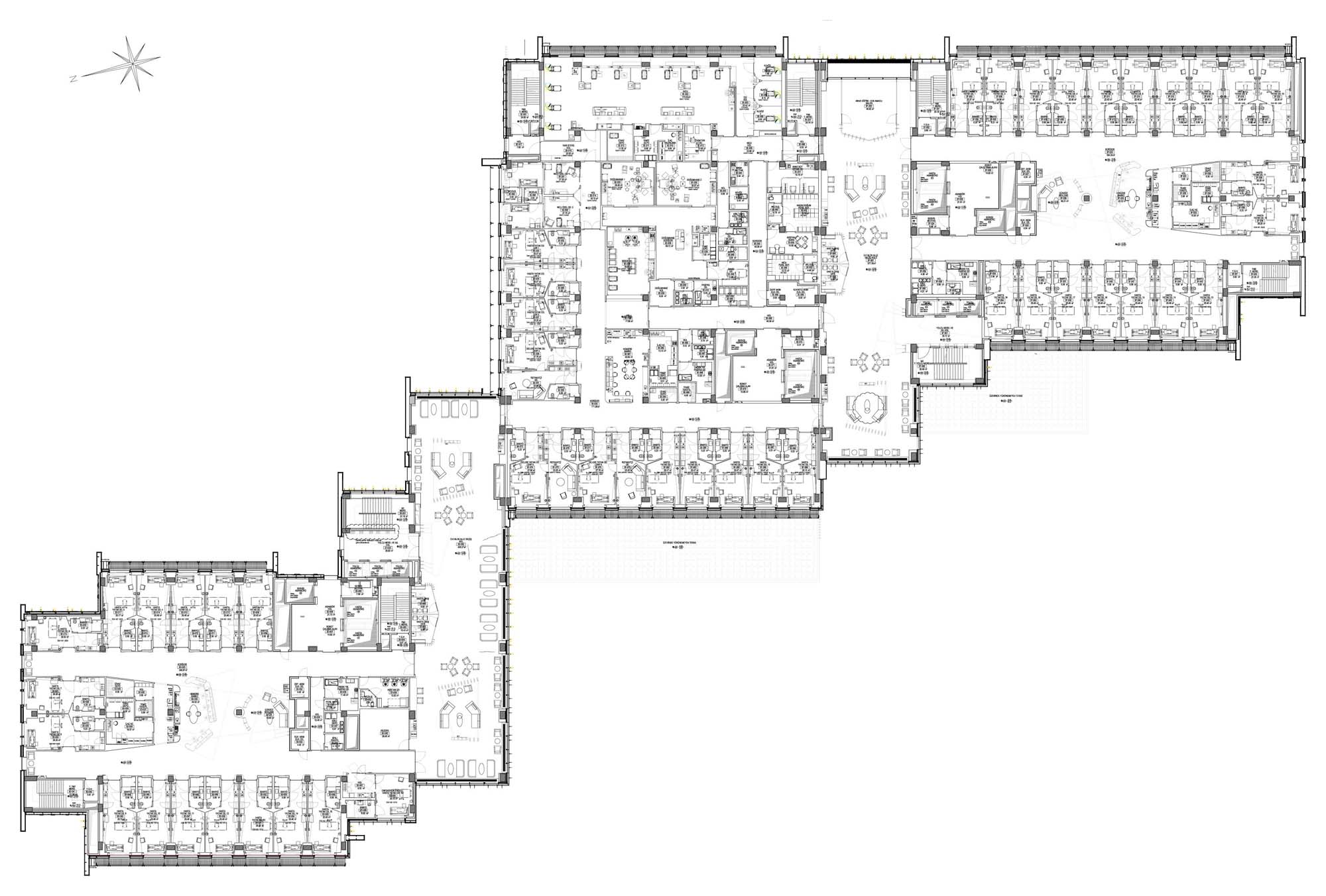
Acıbadem Maslak 2. Etap Hastanesi
Project Location: Sarıyer, İstanbul
Project Office: Lina Mimarlık
Project Type: Hospital / Clinic
Proje Tipi Grubu: Sağlık
Tasarım Ekibi: Aylin Şensoy
Employer: Acıbadem Sağlık Grubu
Consultant: Temel Baltaoğlu
Yardımcı: Gönül Keklik, Sinem Akbin, Farnaz Taghvimi, Özlem Erpek, Gülser Uzer
Ana Yüklenici: Acıbadem Proje Yönetimi
Peyzaj Mimarlığı: Spiga Peyzaj
Interior Architecture: Metex Design Group
Projcet Manager: Senem Bayraktar
Construction Drawings: Archistanbul
Facade Design: BatesForum, Norm Mimarlık
Structural Project: Ülker Mühendislik
Mechanical Project: Acıbadem Proje Yönetimi
Electrical Project: Acıbadem Proje Yönetimi
Plumbing Project: Acıbadem Proje Yönetimi
Çelik Projesi: Ülker Mühendislik
Acoustic Consultant: MEA Akustik Danışmanlık
Fire Safety Consultant: Abdurahman Kılıç, Kazım Beceren
Photography: Cemal Emden
Construction Site Manager: Dilek Metin, Melik Küçük
Project Start Date: 2016
Project End Date: 2017
Construction Start Date: 2017
Construction End Date: 2018
Building Plot Area: 17,909 m2
Total Construction Area: 64,000 m2