12/16
Paylaş
Resmi Orjinal Boyutunda Göster
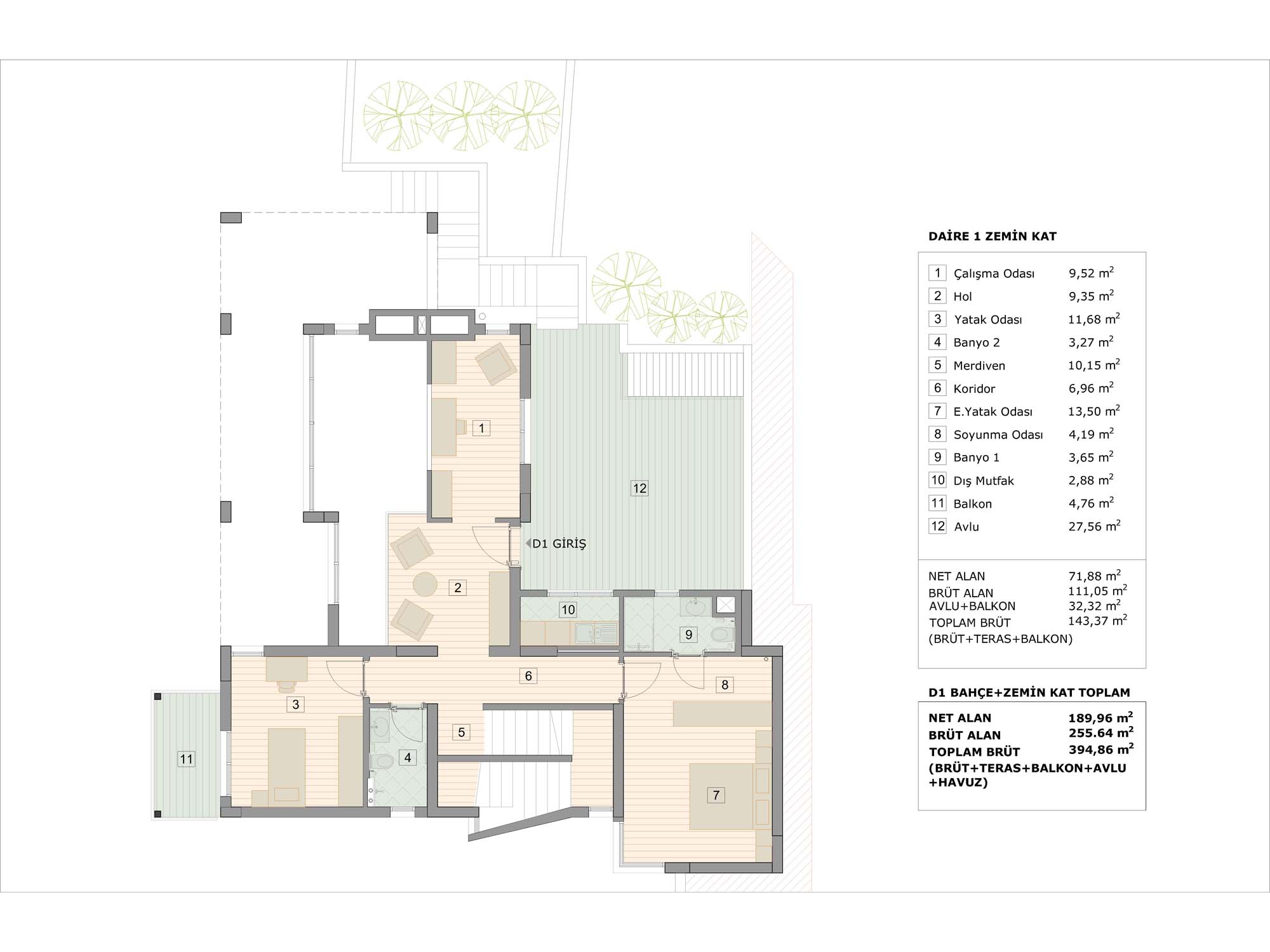
Bodrumda Villa
Proje Yeri: Muğla, Bodrum
Proje Ofisi: Akyürek Elmas Mimarlık
Tasarım Ekibi: Can Elmas, Çağla Akyürek
Yardımcı: Cihan Alp Sürücü, Nuran Yapalak
Ana Yüklenici: Vona Uluslararası Ticaret ve İnşaat
Proje Yöneticisi: Can Elmas
Statik Projesi: AS-TA Mühendislik
Mekanik Projesi: Tayga Mühendislik
Elektrik Projesi: CSB Enerji
Tesisat Projesi: Tayga Mühendislik
Fotoğraf: Can Elmas
Mimari Mesleki Kontrollük: Akyürek Elmas Mimarlık
Şantiye Yöneticisi: Zahit Bekman, Can Elmas
Proje Başlangıç Yılı: 2016
Proje Bitiş Yılı: 2017
İnşaat Başlangıç Yılı: 2017
İnşaat Bitiş Yılı: 2018
Toplam İnşaat Alanı: 385 m²