16/16
Paylaş
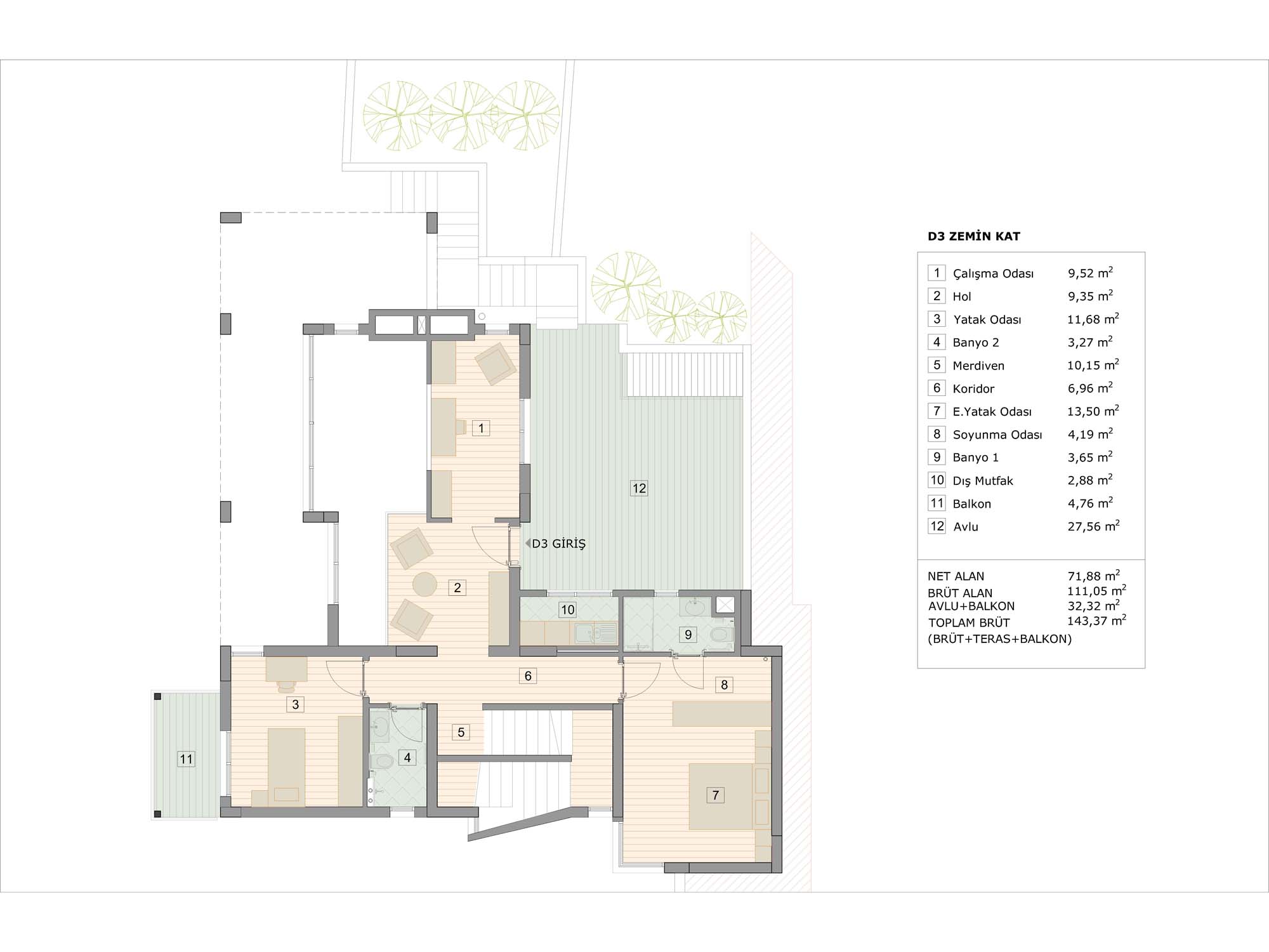
Resmi Orjinal Boyutunda Göster
Bodrumda Villa
Project Location: Muğla, Bodrum
Project Office: Akyürek Elmas Mimarlık
Tasarım Ekibi: Can Elmas, Çağla Akyürek
Yardımcı: Cihan Alp Sürücü, Nuran Yapalak
Ana Yüklenici: Vona Uluslararası Ticaret ve İnşaat
Projcet Manager: Can Elmas
Structural Project: AS-TA Mühendislik
Mechanical Project: Tayga Mühendislik
Electrical Project: CSB Enerji
Plumbing Project: Tayga Mühendislik
Photography: Can Elmas
Architectural Supervision: Akyürek Elmas Mimarlık
Construction Site Manager: Zahit Bekman, Can Elmas
Project Start Date: 2016
Project End Date: 2017
Construction Start Date: 2017
Construction End Date: 2018
Total Construction Area: 385 m²