40/49
Paylaş
Resmi Orjinal Boyutunda Göster
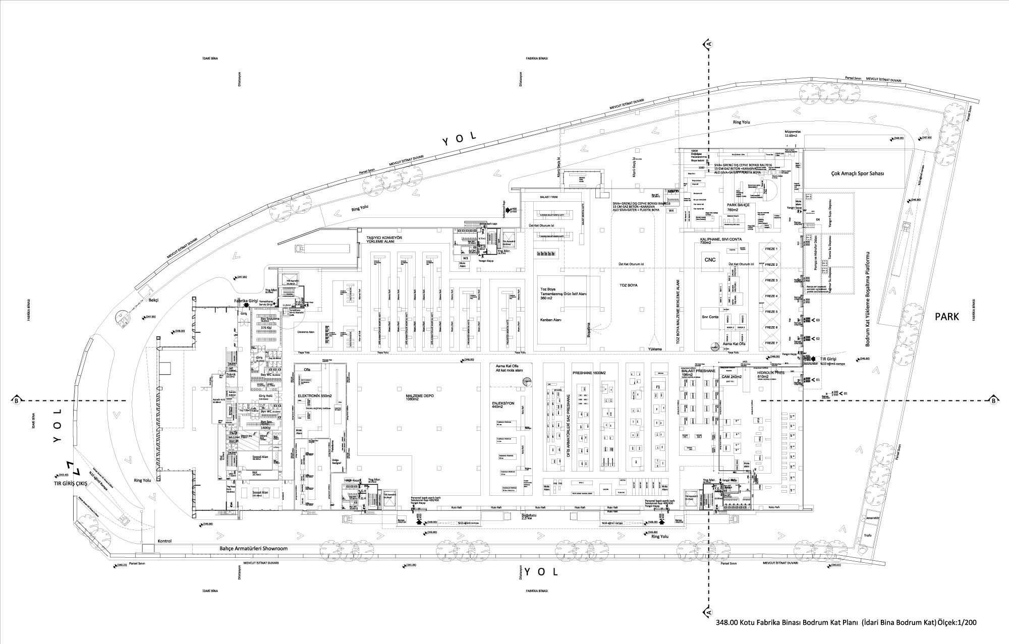
Pelsan Aydınlatma Fabrika ve Yönetim Binası
Project Location: Dilovası, Kocaeli (İzmit)
Project Office: AY.DA Mimarlık, ASC Mimarlık
Project Type: Fabrika , Offices
Proje Tipi Grubu: Endüstriyel
Tasarım Ekibi: Yüksel Öztürk, Alper Yedikardeşler
Employer: Pelsan Aydınlatma
Consultant: Burak Çakır
Yardımcı: Beytullah Güler, Pelin Arabacıoğlu, Yağmur Kaya
Ana Yüklenici: ASC Mimarlık
Interior Architecture: AY.DA Mimarlık
Projcet Manager: Beytullah Güler, AY.DA Mimarlık
Concept Design: AY.DA Mimarlık
Construction Drawings: AY.DA Mimarlık
Facade Design: AY.DA Mimarlık
Lighting Project: AY.DA Mimarlık
Grafik Tasarım: AY.DA Mimarlık
Structural Project: Falez Mühendislik
Mechanical Project: AE Teknik
Electrical Project: AE Teknik
Plumbing Project: AE Teknik
Altyapı Projesi: AE Teknik
Yangın Tahliye Projesi: AE Teknik
Fire Safety Consultant: AE Teknik
Photography: Yağmur Kaya
Architectural Supervision: Kemal Kuş
Construction Site Manager: Kemal Kuş
Project Start Date: 2015
Project End Date: 2018
Construction Start Date: 2015
Construction End Date: 2018
Building Plot Area: 26,780 m2
Total Construction Area: 32,000 m2