42/49
Paylaş
Resmi Orjinal Boyutunda Göster
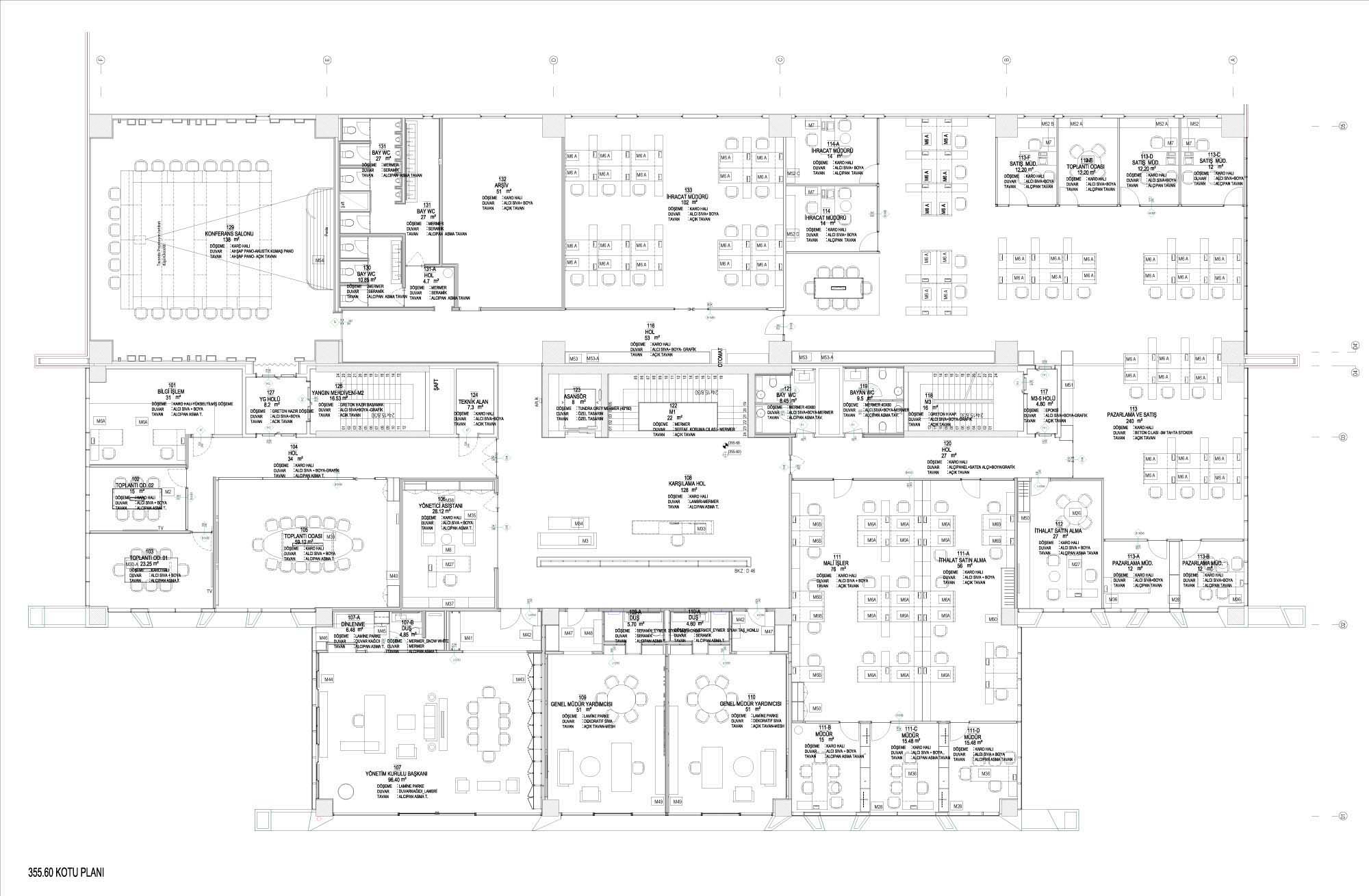
Pelsan Aydınlatma Fabrika ve Yönetim Binası
Proje Yeri: Dilovası, Kocaeli (İzmit)
Proje Ofisi: AY.DA Mimarlık, ASC Mimarlık
Proje Tipi: Fabrika , Ofis
Proje Tipi Grubu: Endüstriyel
Tasarım Ekibi: Yüksel Öztürk, Alper Yedikardeşler
İşveren: Pelsan Aydınlatma
Danışman: Burak Çakır
Yardımcı: Beytullah Güler, Pelin Arabacıoğlu, Yağmur Kaya
Ana Yüklenici: ASC Mimarlık
İç Mekan Projesi: AY.DA Mimarlık
Proje Yöneticisi: Beytullah Güler, AY.DA Mimarlık
Konsept Tasarımı: AY.DA Mimarlık
Uygulama Projesi: AY.DA Mimarlık
Cephe Tasarımı: AY.DA Mimarlık
Aydınlatma Projesi: AY.DA Mimarlık
Grafik Tasarım: AY.DA Mimarlık
Statik Projesi: Falez Mühendislik
Mekanik Projesi: AE Teknik
Elektrik Projesi: AE Teknik
Tesisat Projesi: AE Teknik
Altyapı Projesi: AE Teknik
Yangın Tahliye Projesi: AE Teknik
Yangın Güvenlik Danışmanı: AE Teknik
Fotoğraf: Yağmur Kaya
Mimari Mesleki Kontrollük: Kemal Kuş
Şantiye Yöneticisi: Kemal Kuş
Proje Başlangıç Yılı: 2015
Proje Bitiş Yılı: 2018
İnşaat Başlangıç Yılı: 2015
İnşaat Bitiş Yılı: 2018
Arsa Alanı: 26,780 m2
Toplam İnşaat Alanı: 32,000 m2