44/46
Paylaş
Resmi Orjinal Boyutunda Göster
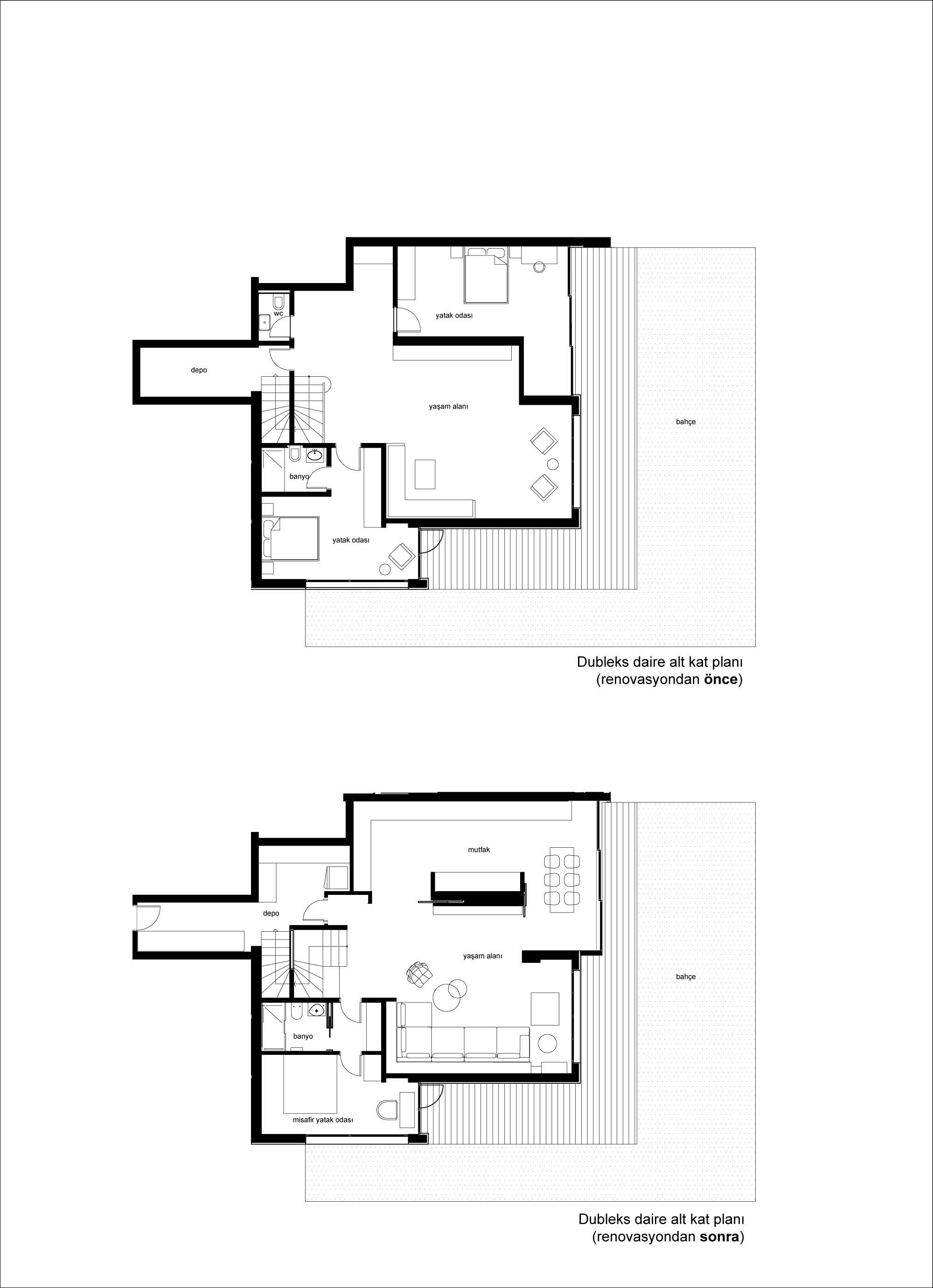
AG Evi İç Mimari Renovasyon Projesi
Proje Yeri: Ankara
Proje Ofisi: Belgin Koz Mimarlık
Proje Tipi: Apartman
Proje Tipi Grubu: Konut
Tasarım Ekibi: Belgin Koz, Simla Yüzgeç
Uygulama Projesi: Simla Yüzgeç
Fotoğraf: Levent Songür, Elif Düzel, Simla Yüzgeç
Proje Başlangıç Yılı: , 2017
Proje Bitiş Yılı: 2018
İnşaat Başlangıç Yılı: 2017
İnşaat Bitiş Yılı: 2018
Toplam İnşaat Alanı: 420 m2