45/46
Paylaş
Resmi Orjinal Boyutunda Göster
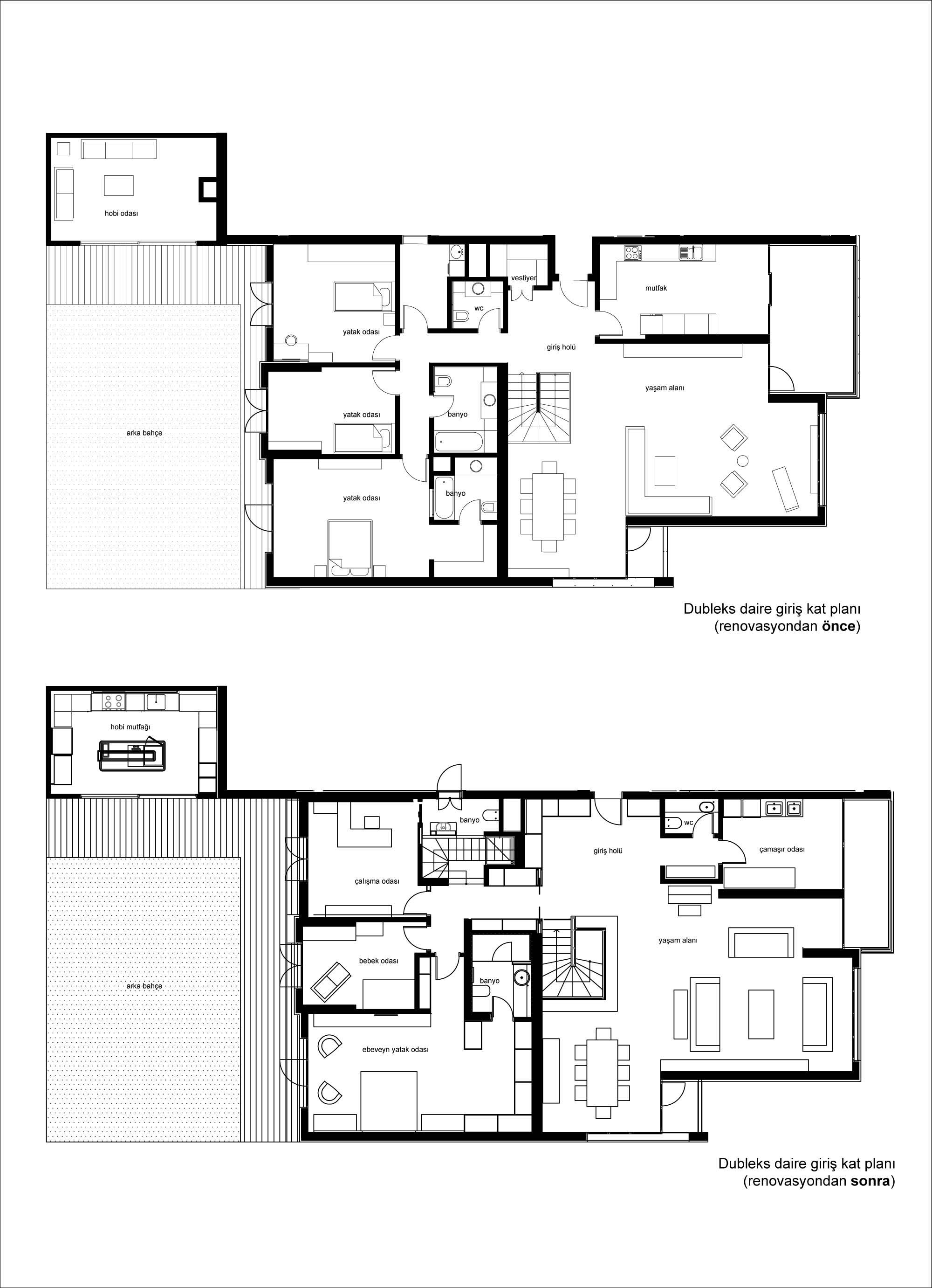
AG Evi İç Mimari Renovasyon Projesi
Project Location: Ankara
Project Office: Belgin Koz Mimarlık
Project Type: Apartment
Proje Tipi Grubu: Konut
Tasarım Ekibi: Belgin Koz, Simla Yüzgeç
Construction Drawings: Simla Yüzgeç
Photography: Levent Songür, Elif Düzel, Simla Yüzgeç
Project Start Date: , 2017
Project End Date: 2018
Construction Start Date: 2017
Construction End Date: 2018
Total Construction Area: 420 m2