55/59
Paylaş
Resmi Orjinal Boyutunda Göster
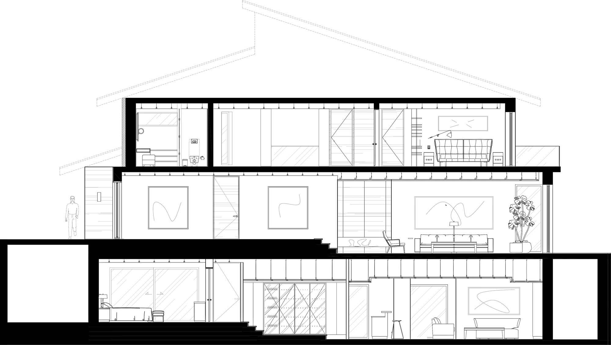
Bahçeköy Villa
Project Location: Sarıyer, İstanbul
Project Office: Habif Mimarlık
Project Type: Single House
Proje Tipi Grubu: Konut
Tasarım Ekibi: Setenay Erkul, Hakan Habif
Employer: Alp Saul
Ana Yüklenici: Habif Mimarlık
Peyzaj Mimarlığı: SdARCH Trivelli & Associati
Lighting Project: Ebru Katmer
Electrical Project: Arslan Elektrik
Plumbing Project: Yelken Mühendislik
Photography: İbrahim Özbunar
Project Start Date: 2016
Project End Date: 2018
Construction Start Date: 2016
Construction End Date: 2018
Building Plot Area: 2,200 m²
Total Construction Area: 1,700 m2