57/59
Paylaş
Resmi Orjinal Boyutunda Göster
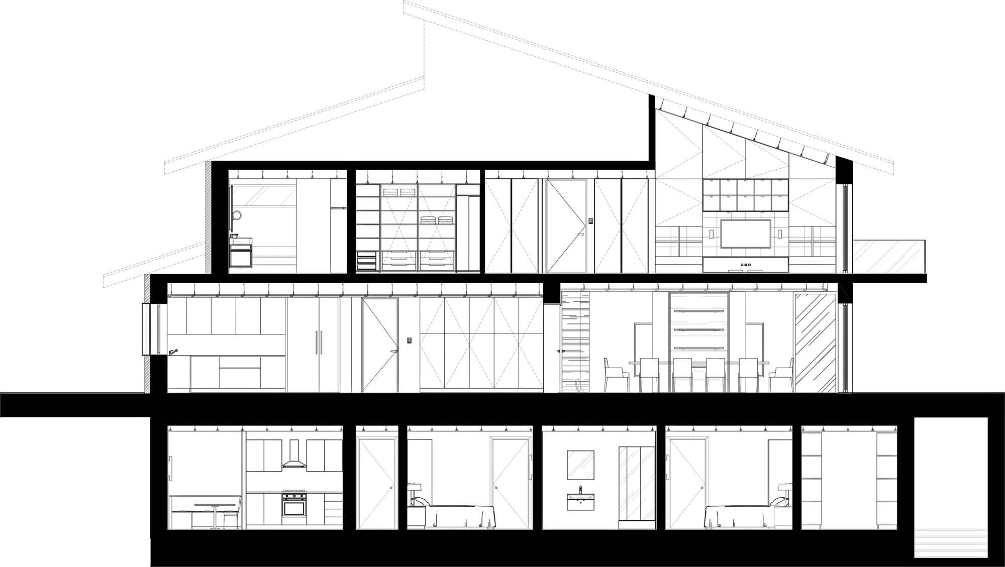
Bahçeköy Villa
Proje Yeri: Sarıyer, İstanbul
Proje Ofisi: Habif Mimarlık
Proje Tipi: Tek Ev / Villa
Proje Tipi Grubu: Konut
Tasarım Ekibi: Setenay Erkul, Hakan Habif
İşveren: Alp Saul
Ana Yüklenici: Habif Mimarlık
Peyzaj Mimarlığı: SdARCH Trivelli & Associati
Aydınlatma Projesi: Ebru Katmer
Elektrik Projesi: Arslan Elektrik
Tesisat Projesi: Yelken Mühendislik
Fotoğraf: İbrahim Özbunar
Proje Başlangıç Yılı: 2016
Proje Bitiş Yılı: 2018
İnşaat Başlangıç Yılı: 2016
İnşaat Bitiş Yılı: 2018
Arsa Alanı: 2,200 m²
Toplam İnşaat Alanı: 1,700 m2