22/26
Paylaş
Resmi Orjinal Boyutunda Göster
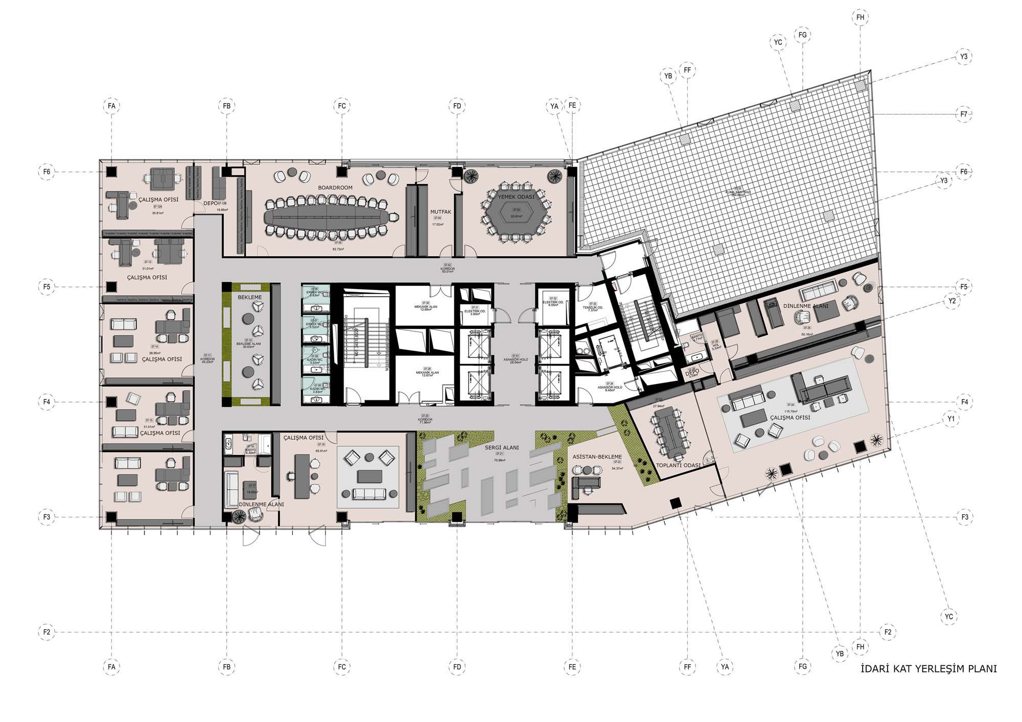
Kale Kilit Genel Müdürlük Binası
Project Location: Sarıyer, İstanbul
Project Office: Bakırküre Mimarlık
Project Type: Offices
Proje Tipi Grubu: Commercial
Tasarım Ekibi: Gürhan Bakırküre
Employer: Kale Topkapı Bina İşletme ve Gayrimenkul Geliştirme AŞ
Yardımcı: Doruk Soyal, Nur Sarıbal, Sinem Yardımcı, Ahmet Özyazgan, Nezih Barış Özgül, Hülya Atan, Leyal Kurtuluş
Ana Yüklenici: Bakırküre Mimarlık
Projcet Manager: Hülya Atan, Leyal Kurtuluş
Construction Site Manager: Sinan Coşkun
Project Start Date: 2017
Project End Date: 2017
Construction Start Date: 2017
Construction End Date: 2018
Total Construction Area: 9,000m2