24/26
Paylaş
Resmi Orjinal Boyutunda Göster
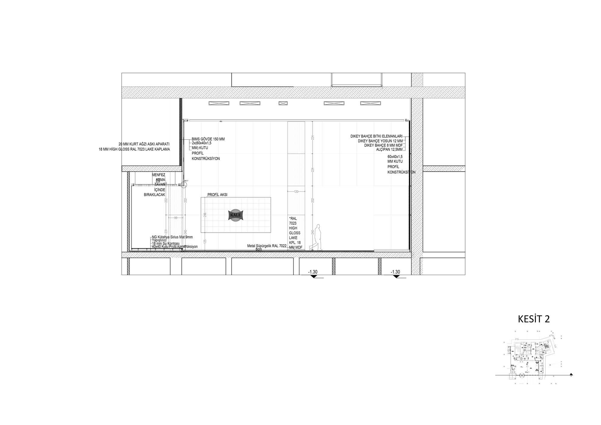
Kale Kilit Genel Müdürlük Binası
Proje Yeri: Sarıyer, İstanbul
Proje Ofisi: Bakırküre Mimarlık
Proje Tipi: Ofis
Proje Tipi Grubu: Ticari
Tasarım Ekibi: Gürhan Bakırküre
İşveren: Kale Topkapı Bina İşletme ve Gayrimenkul Geliştirme AŞ
Yardımcı: Doruk Soyal, Nur Sarıbal, Sinem Yardımcı, Ahmet Özyazgan, Nezih Barış Özgül, Hülya Atan, Leyal Kurtuluş
Ana Yüklenici: Bakırküre Mimarlık
Proje Yöneticisi: Hülya Atan, Leyal Kurtuluş
Şantiye Yöneticisi: Sinan Coşkun
Proje Başlangıç Yılı: 2017
Proje Bitiş Yılı: 2017
İnşaat Başlangıç Yılı: 2017
İnşaat Bitiş Yılı: 2018
Toplam İnşaat Alanı: 9,000m2