46/56
Paylaş
Resmi Orjinal Boyutunda Göster
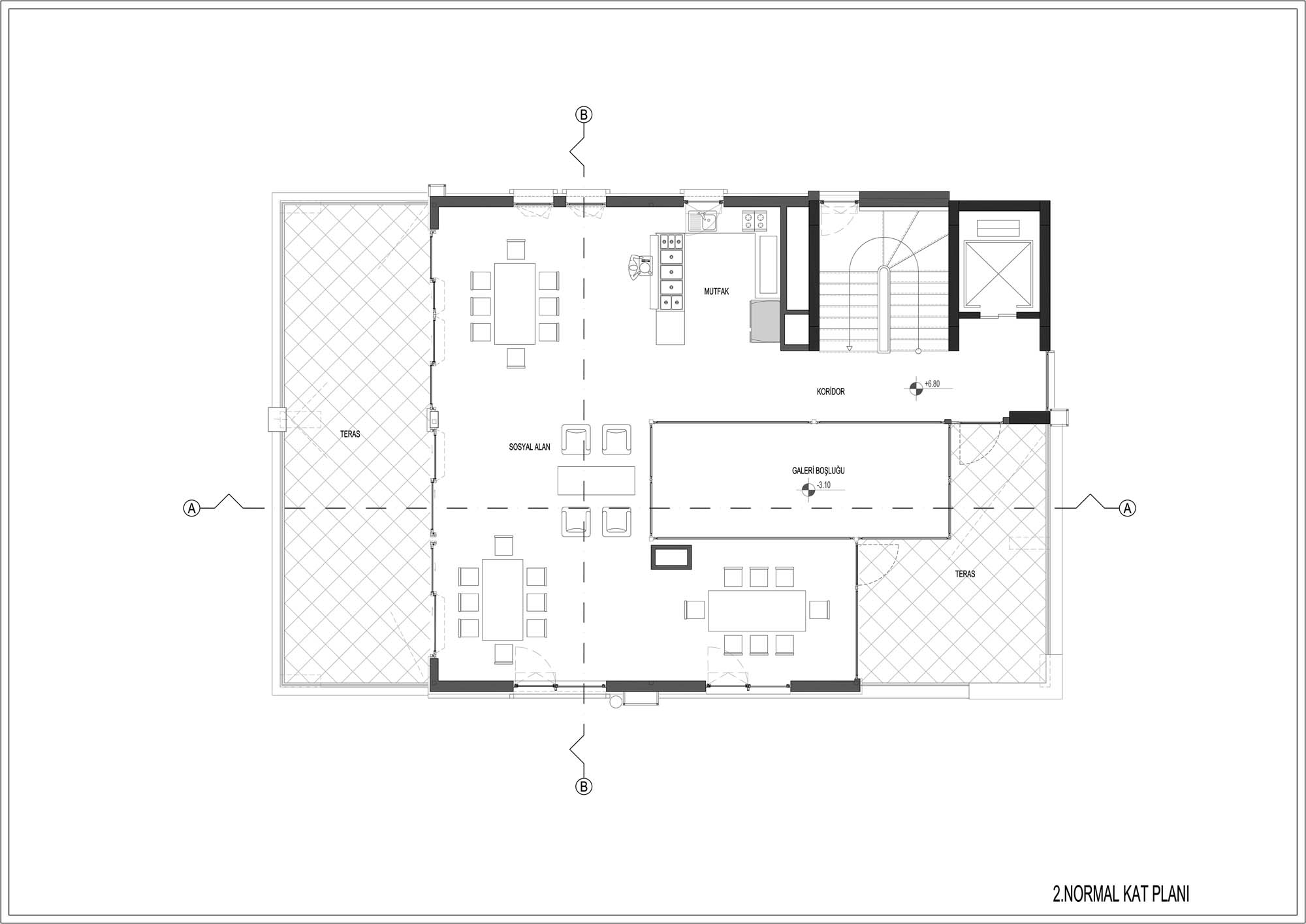
Özgüven Mimarlık Genel Merkez Binası
Proje Yeri: Ankara, Çankaya
Proje Ofisi: Özgüven Mimarlık
Proje Tipi: Ofis
Proje Tipi Grubu: Ticari
Tasarım Ekibi: Uğur Özer Özgüven, Özgür Onur Özgüven, Erkan Durusoy, Ergi Bozyiğit, Hakan Şanlı, Mümtaz Yücel, Orhan Efendiyev, Ece Yıldırım, Turan Ülger
İşveren: Özgüven Mimarlık
Danışman: Mimta Mimarlık
Ana Yüklenici: Özgüven Mimarlık
Peyzaj Mimarlığı: MD PROJE, Murat Memlük, Özge Gökmen
Proje Yöneticisi: Uğur Özer Özgüven
Aydınlatma Projesi: Özgüven Mimarlık, Zeve Mühendislik ve Aydınlatma
Statik Projesi: Alsancak Mühendislik
Mekanik Projesi: Soem Mühendislik
Elektrik Projesi: HB Elektrik
Tesisat Projesi: Soem Mühendislik
Çelik Projesi: Alsancak Mühendislik
Altyapı Projesi: Özgüven Mimarlık
Akustik Projesi: Zeynep ÖZGÜVEN
Yangın Tahliye Projesi: Özgüven Mimarlık
Maket: v, Fuzuli AFANDİYEV
Fotoğraf: Dantatsu
Şantiye Yöneticisi: Erkan Durusoy, Özgüven Mimarlık
Proje Başlangıç Yılı: 2016
Proje Bitiş Yılı: 2017
İnşaat Başlangıç Yılı: 2017
İnşaat Bitiş Yılı: 2018
Arsa Alanı: 599 m2
Toplam İnşaat Alanı: 1,246 m2