47/56
Paylaş
Resmi Orjinal Boyutunda Göster
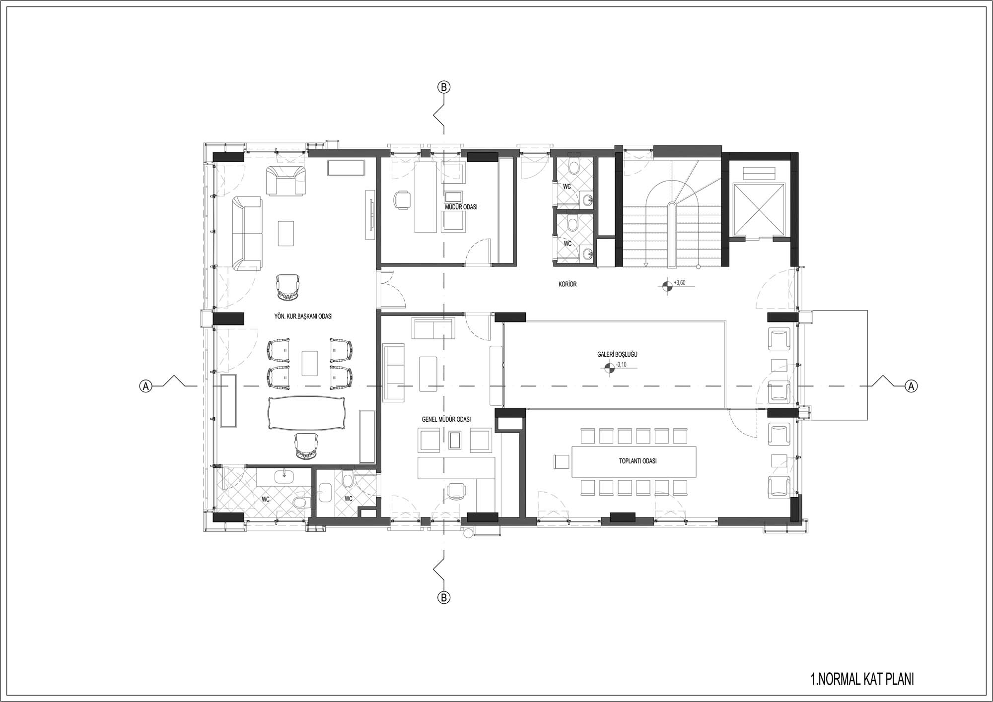
Özgüven Mimarlık Genel Merkez Binası
Project Location: Ankara, Çankaya
Project Office: Özgüven Mimarlık
Project Type: Offices
Proje Tipi Grubu: Commercial
Tasarım Ekibi: Uğur Özer Özgüven, Özgür Onur Özgüven, Erkan Durusoy, Ergi Bozyiğit, Hakan Şanlı, Mümtaz Yücel, Orhan Efendiyev, Ece Yıldırım, Turan Ülger
Employer: Özgüven Mimarlık
Consultant: Mimta Mimarlık
Ana Yüklenici: Özgüven Mimarlık
Peyzaj Mimarlığı: MD PROJE, Murat Memlük, Özge Gökmen
Projcet Manager: Uğur Özer Özgüven
Lighting Project: Özgüven Mimarlık, Zeve Mühendislik ve Aydınlatma
Structural Project: Alsancak Mühendislik
Mechanical Project: Soem Mühendislik
Electrical Project: HB Elektrik
Plumbing Project: Soem Mühendislik
Çelik Projesi: Alsancak Mühendislik
Altyapı Projesi: Özgüven Mimarlık
Akustik Projesi: Zeynep ÖZGÜVEN
Yangın Tahliye Projesi: Özgüven Mimarlık
Model: v, Fuzuli AFANDİYEV
Photography: Dantatsu
Construction Site Manager: Erkan Durusoy, Özgüven Mimarlık
Project Start Date: 2016
Project End Date: 2017
Construction Start Date: 2017
Construction End Date: 2018
Building Plot Area: 599 m2
Total Construction Area: 1,246 m2