24/29
Paylaş
Resmi Orjinal Boyutunda Göster
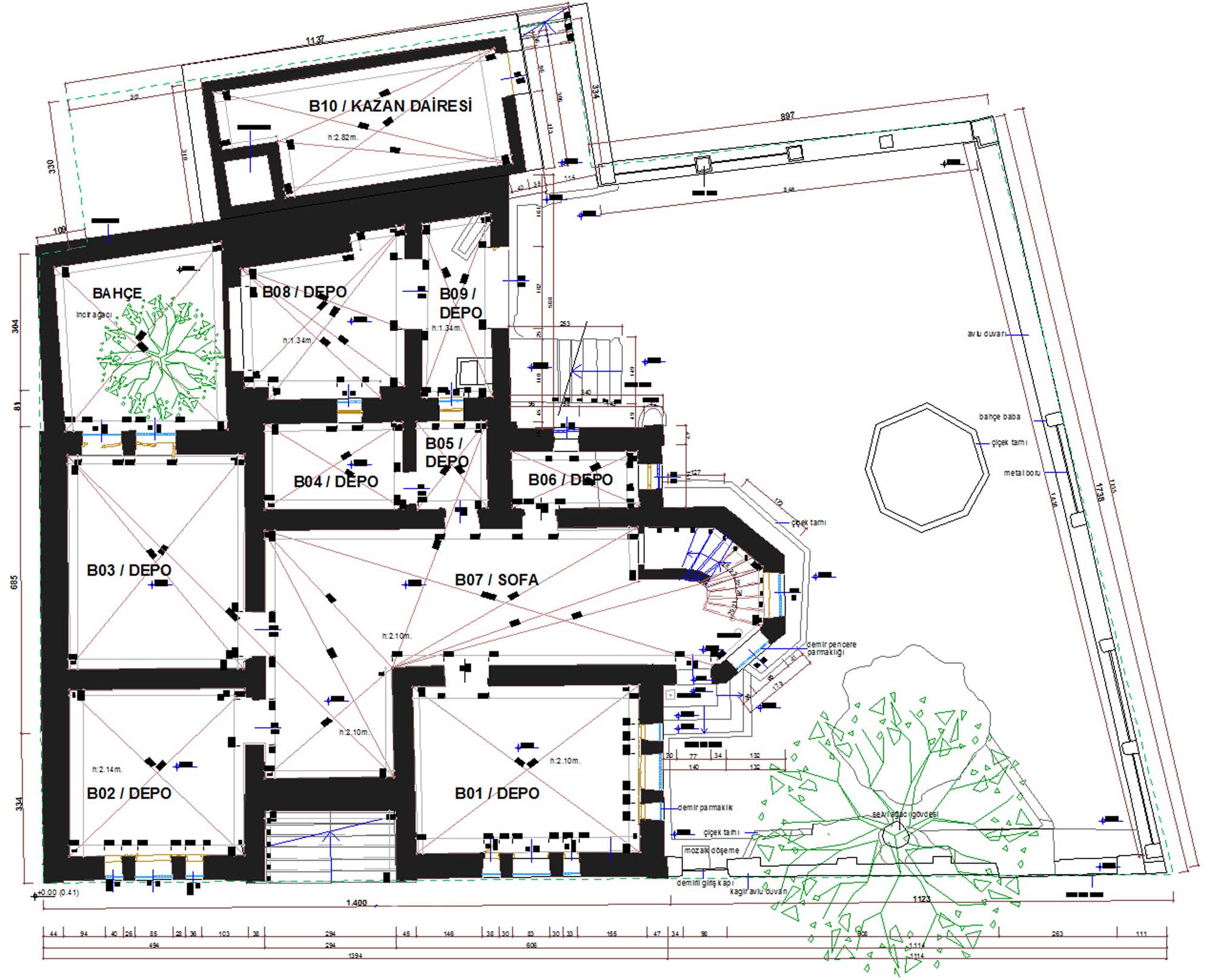
Edremit Atatürk Kültür Evi
Proje Yeri: Edremit, Balıkesir
Proje Ofisi: Uludağ Üniversitesi Ulutek Teknoloji Transfer Ofisi
Proje Tipi: Kültür Merkezi
Proje Tipi Grubu: Kültür
Tasarım Ekibi: Özlem Köprülü Bağbancı
İşveren: Edremit Belediyesi
Ana Yüklenici: Murat Altunkalem, YNC İnşaat ve Restorasyon
Uygulama Projesi: Özlem Köprülü Bağbancı
Statik Projesi: Bilal Bağbancı
Mekanik Projesi: Şinasi Üzülmez, Selahattin Kurtuluş, Ki-Em Mekanik
Elektrik Projesi: Nurettin Bezir, Nursoy Mühendislik
Yangın Tahliye Projesi: Şinasi Üzülmez, Selahattin Kurtuluş, Ki-Em Mekanik
Mimari Mesleki Kontrollük: Özlem Köprülü Bağbancı, Bilal Bağbancı
Şantiye Yöneticisi: Murat Altunkalem
Proje Başlangıç Yılı: 2016
Proje Bitiş Yılı: 2017
İnşaat Başlangıç Yılı: 2018
İnşaat Bitiş Yılı: 2018
Arsa Alanı: 450 m2
Toplam İnşaat Alanı: 462 m2