25/29
Paylaş
Resmi Orjinal Boyutunda Göster
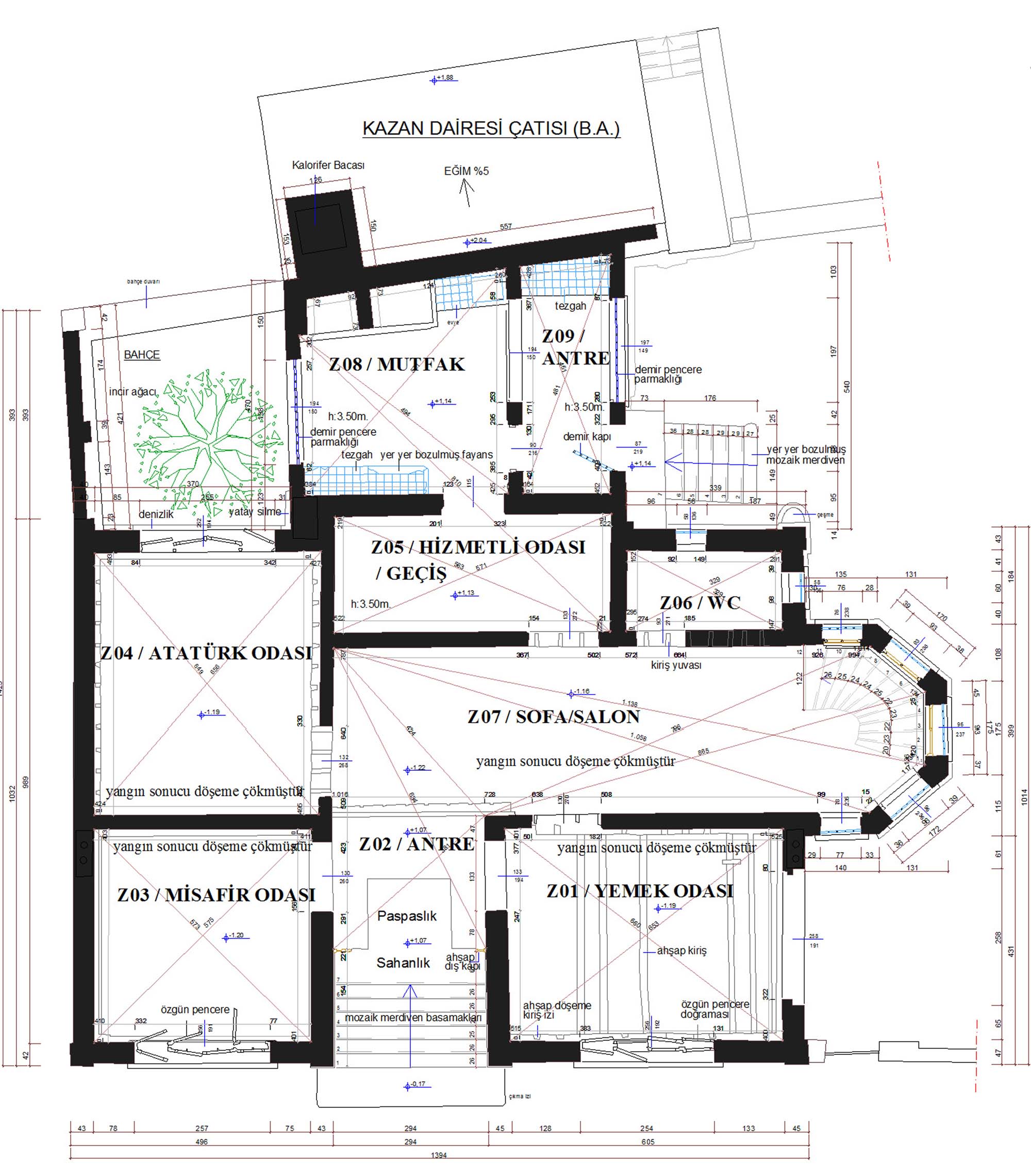
Edremit Atatürk Kültür Evi
Project Location: Edremit, Balıkesir
Project Office: Uludağ Üniversitesi Ulutek Teknoloji Transfer Ofisi
Project Type: Cultural Center
Proje Tipi Grubu: Kültür
Tasarım Ekibi: Özlem Köprülü Bağbancı
Employer: Edremit Belediyesi
Ana Yüklenici: Murat Altunkalem, YNC İnşaat ve Restorasyon
Construction Drawings: Özlem Köprülü Bağbancı
Structural Project: Bilal Bağbancı
Mechanical Project: Şinasi Üzülmez, Selahattin Kurtuluş, Ki-Em Mekanik
Electrical Project: Nurettin Bezir, Nursoy Mühendislik
Yangın Tahliye Projesi: Şinasi Üzülmez, Selahattin Kurtuluş, Ki-Em Mekanik
Architectural Supervision: Özlem Köprülü Bağbancı, Bilal Bağbancı
Construction Site Manager: Murat Altunkalem
Project Start Date: 2016
Project End Date: 2017
Construction Start Date: 2018
Construction End Date: 2018
Building Plot Area: 450 m2
Total Construction Area: 462 m2