37/54
Paylaş
Resmi Orjinal Boyutunda Göster
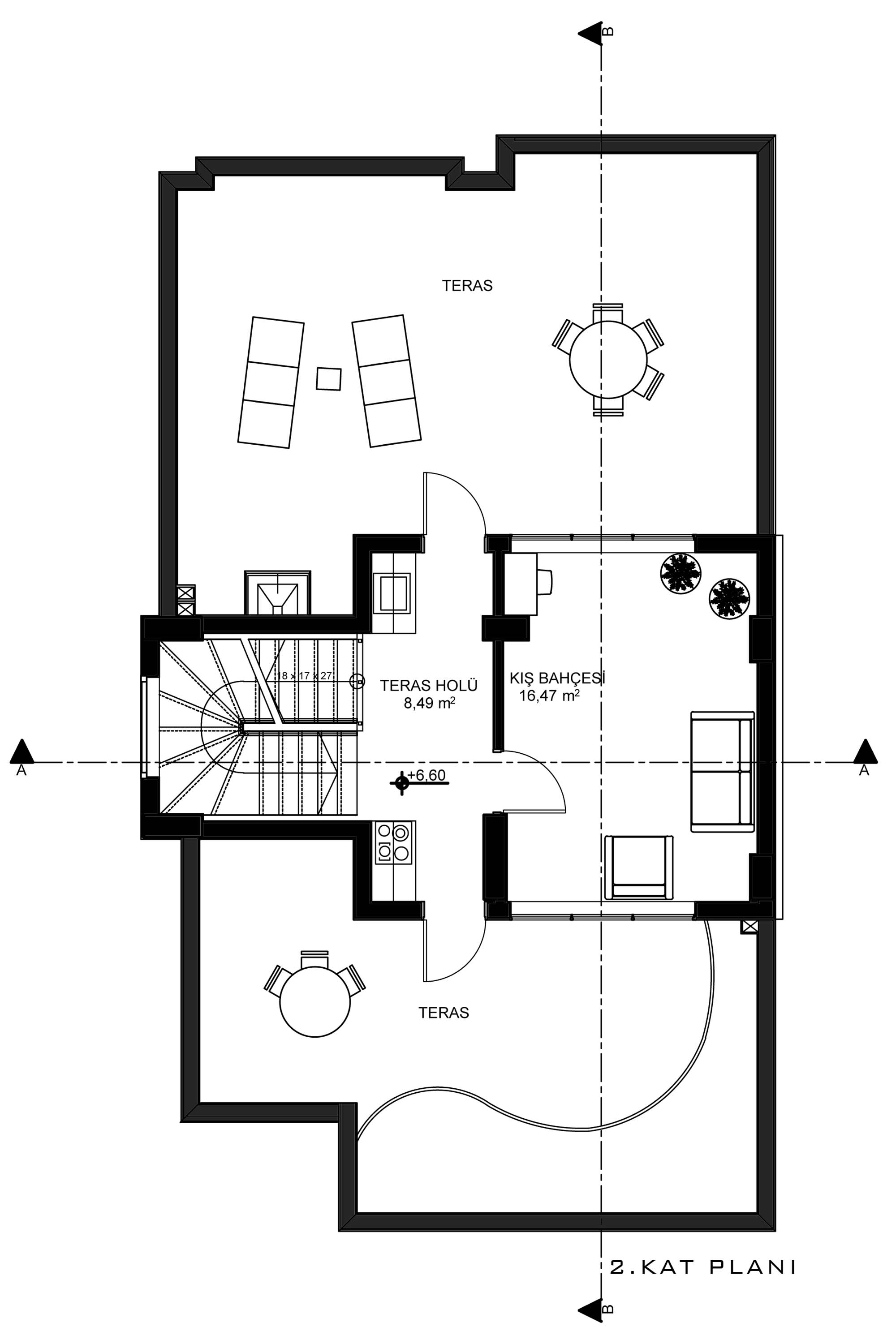
Kuvars Villa ve Rezidans
Proje Yeri: Serdivan, Sakarya
Proje Ofisi: Paker Mimarlık
Proje Tipi: Konut Sitesi / Grubu
Proje Tipi Grubu: Konut
Tasarım Ekibi: Nuralp Paker
İşveren: NTK Yapı
Ana Yüklenici: NTK Yapı
Statik Projesi: Ergül Mühendislik
Mekanik Projesi: Emre Mühendislik
Elektrik Projesi: Özgür Kara Mühendislik
Tesisat Projesi: Emre Mühendislik
Altyapı Projesi: Büşra Mühendislik
Fotoğraf: Dada Reklam
Proje Başlangıç Yılı: 2016
Proje Bitiş Yılı: 2016
İnşaat Başlangıç Yılı: 2016
İnşaat Bitiş Yılı: 2018
Toplam İnşaat Alanı: 5,544 m2