49/54
Paylaş
Resmi Orjinal Boyutunda Göster
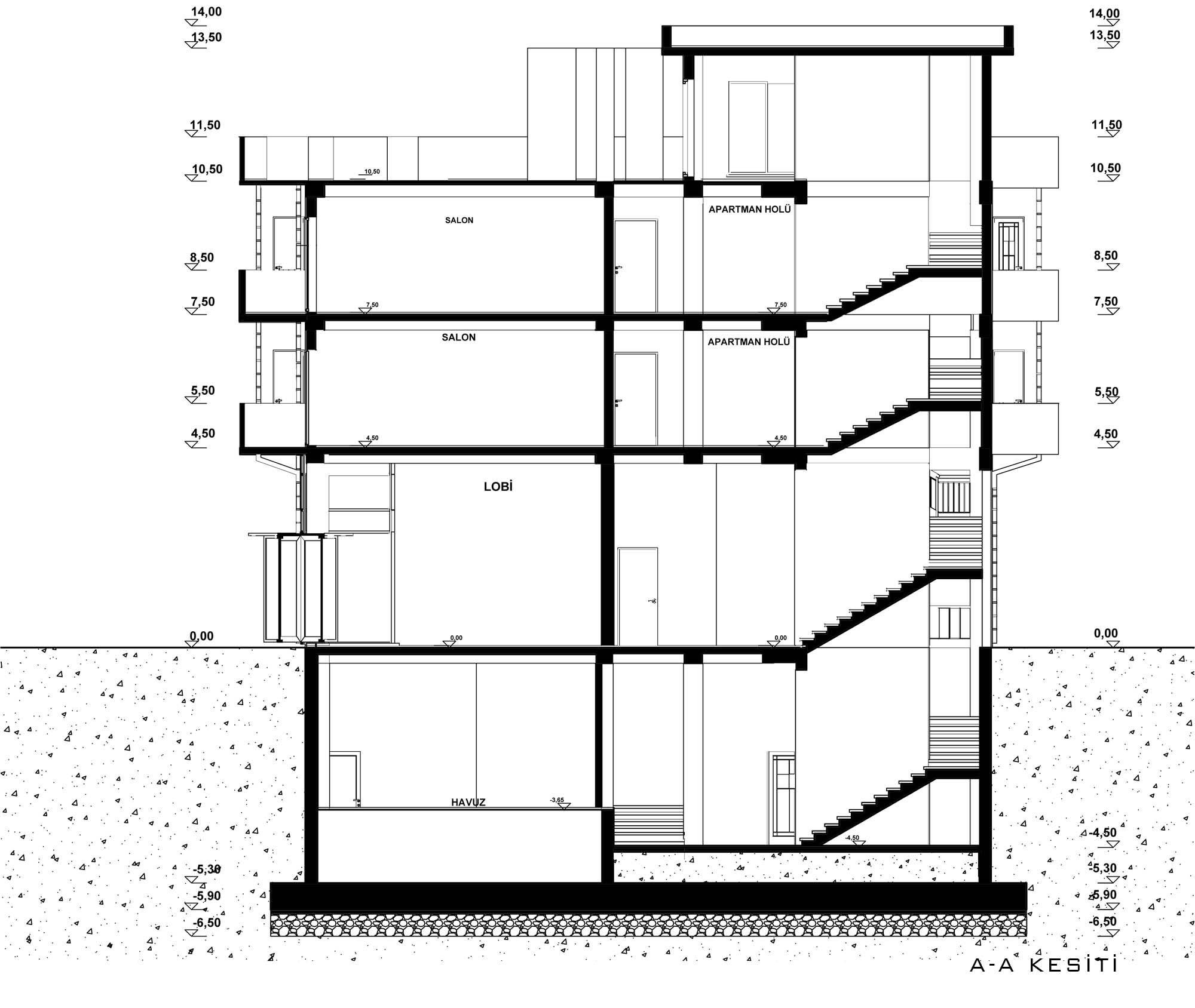
Kuvars Villa ve Rezidans
Project Location: Serdivan, Sakarya
Project Office: Paker Mimarlık
Project Type: Housing Complex
Proje Tipi Grubu: Konut
Tasarım Ekibi: Nuralp Paker
Employer: NTK Yapı
Ana Yüklenici: NTK Yapı
Structural Project: Ergül Mühendislik
Mechanical Project: Emre Mühendislik
Electrical Project: Özgür Kara Mühendislik
Plumbing Project: Emre Mühendislik
Altyapı Projesi: Büşra Mühendislik
Photography: Dada Reklam
Project Start Date: 2016
Project End Date: 2016
Construction Start Date: 2016
Construction End Date: 2018
Total Construction Area: 5,544 m2