23/27
Paylaş
Resmi Orjinal Boyutunda Göster
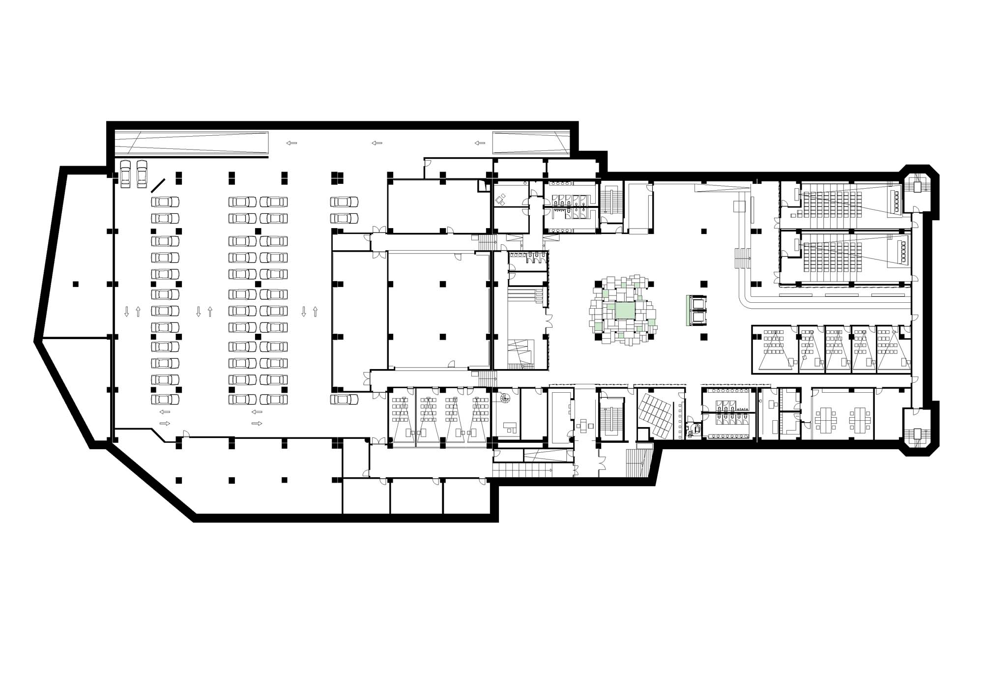
Beylikdüzü Atatürk Kültür ve Sanat Merkezi
Project Location: Beylikdüzü, İstanbul
Project Office: SO? Mimarlık ve Fikriyat
Project Type: Cultural Center
Proje Tipi Grubu: Kültür
Tasarım Ekibi: Sevince Bayrak, Oral Göktaş, Derya Ertan Şen
Employer: Beylikdüzü Belediyesi
Yardımcı: Atıl Aggündüz, Laura Villeret, Elif Çivici, Damla Kömürcü, Hanse Yalçınkaya, Metincan Güzel, Buket Yılmaz, Şeyma Erdal, Cansu Özay, Ece Paşalıoğlu, Hazal Seval
Ana Yüklenici: Metal Yapı / Fibrobeton
Peyzaj Mimarlığı: TYLA
Grafik Tasarım: Dilara Sezgin
Mechanical Project: Meta Mühendislik
Electrical Project: Cedetaş Mühendislik
Plumbing Project: Meta Mühendislik
Çelik Projesi: Aykon Mühendislik
Akustik Projesi: MEA Akustik
Photography: Yercekim Mimari Fotograf
Project Start Date: 2015
Project End Date: 2016
Construction Start Date: 2016
Construction End Date: 2018
Building Plot Area: 24,000 m²
Total Construction Area: 20,000 m²