25/27
Paylaş
Resmi Orjinal Boyutunda Göster
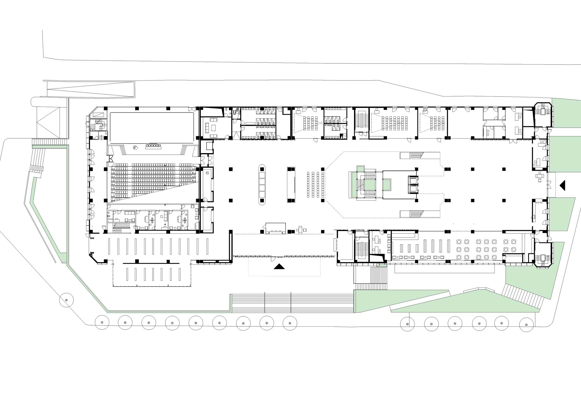
Beylikdüzü Atatürk Kültür ve Sanat Merkezi
Proje Yeri: Beylikdüzü, İstanbul
Proje Ofisi: SO? Mimarlık ve Fikriyat
Proje Tipi: Kültür Merkezi
Proje Tipi Grubu: Kültür
Tasarım Ekibi: Sevince Bayrak, Oral Göktaş, Derya Ertan Şen
İşveren: Beylikdüzü Belediyesi
Yardımcı: Atıl Aggündüz, Laura Villeret, Elif Çivici, Damla Kömürcü, Hanse Yalçınkaya, Metincan Güzel, Buket Yılmaz, Şeyma Erdal, Cansu Özay, Ece Paşalıoğlu, Hazal Seval
Ana Yüklenici: Metal Yapı / Fibrobeton
Peyzaj Mimarlığı: TYLA
Grafik Tasarım: Dilara Sezgin
Mekanik Projesi: Meta Mühendislik
Elektrik Projesi: Cedetaş Mühendislik
Tesisat Projesi: Meta Mühendislik
Çelik Projesi: Aykon Mühendislik
Akustik Projesi: MEA Akustik
Fotoğraf: Yercekim Mimari Fotograf
Proje Başlangıç Yılı: 2015
Proje Bitiş Yılı: 2016
İnşaat Başlangıç Yılı: 2016
İnşaat Bitiş Yılı: 2018
Arsa Alanı: 24,000 m²
Toplam İnşaat Alanı: 20,000 m²