22/28
Paylaş
Resmi Orjinal Boyutunda Göster
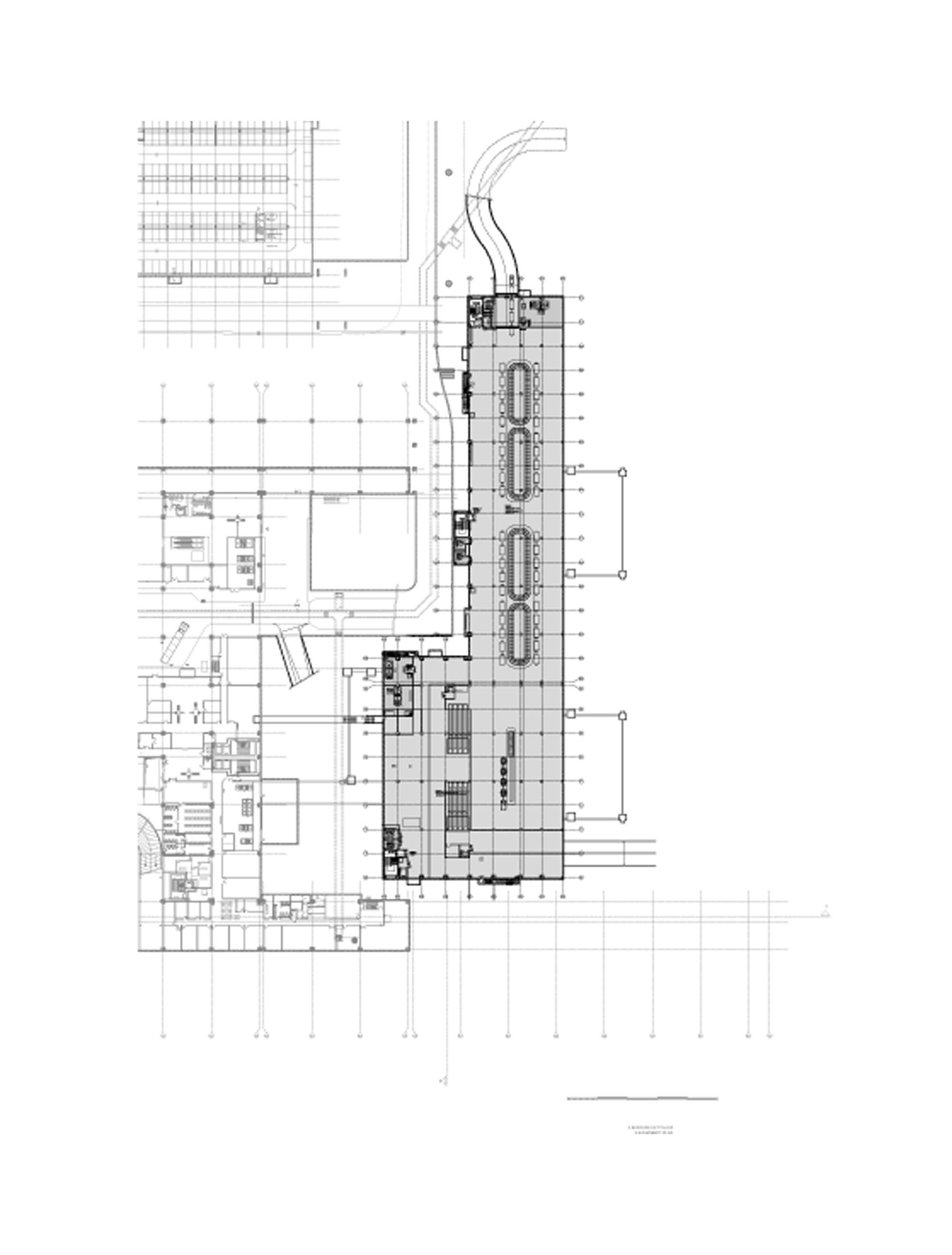
Sabiha Gökçen Havalimanı Terminal Ek Binası
Project Location: İstanbul, Pendik
Project Office: Tekeli-Sisa Mimarlık Ortaklığı
Project Type: Airport
Proje Tipi Grubu: Ulaşım
Tasarım Ekibi: Doğan Tekeli, Dilgün Saklar, Mehmet Emin Çakırkaya
Employer: ISG Uluslararası Havalimanı Yatırım Yapım ve İşletme AŞ
Yardımcı: Aydın Bilgi, Begüm Ülker, Ceren Erman, Alper Gürtekin, Ceylan Cöbek, Gülşen Geniş, Hüsne Cavlak, Mehtap Eray, Nazlı Melis Kocamanoğlu, Öznur Emin Ceylan, Serra Özgüle, Tuğçe Torunlar
Ana Yüklenici: Nivak Danışmanlık ve Mimarlık
Alt Yüklenici: Nest Çelik
Projcet Manager: Münevver Antzcak, Entegre Proje Yönetim Danışmanlık
Structural Project: Arup Mühendislik
Mechanical Project: Dinamik Proje Mühendislik
Electrical Project: Enmar Mühendislik
Yangın Tahliye Projesi: Etik Mühendislik
Architectural Supervision: Tekeli-Sisa Mimarlık Ortaklığı
Construction Site Manager: Mete Bezircioğlu, Nivak Danışmanlık
Project Start Date: 2016
Project End Date: 2017
Construction Start Date: 2017
Construction End Date: 2018
Total Construction Area: 25,440 m²