23/28
Paylaş
Resmi Orjinal Boyutunda Göster
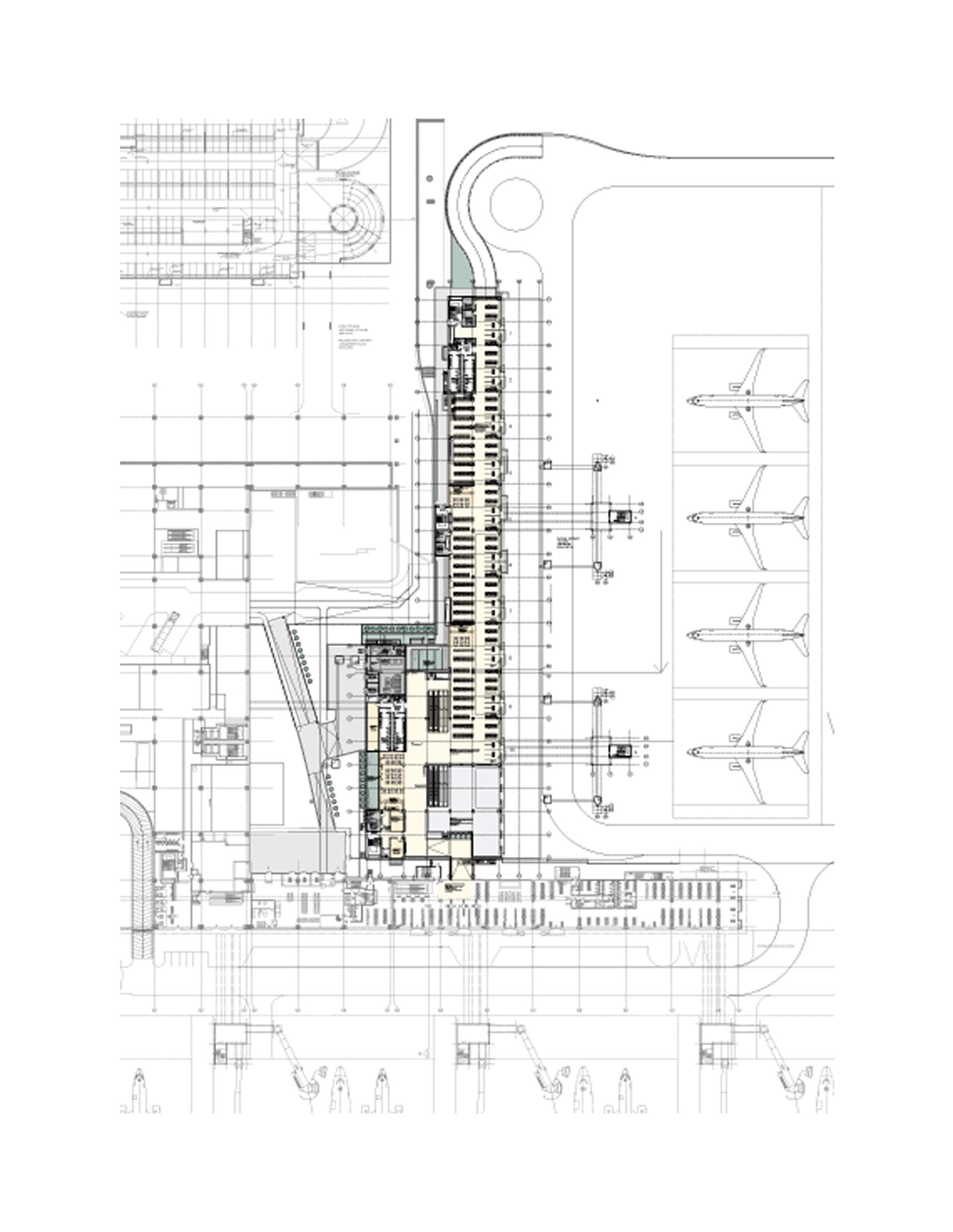
Sabiha Gökçen Havalimanı Terminal Ek Binası
Proje Yeri: İstanbul, Pendik
Proje Ofisi: Tekeli-Sisa Mimarlık Ortaklığı
Proje Tipi: Havalimanı
Proje Tipi Grubu: Ulaşım
Tasarım Ekibi: Doğan Tekeli, Dilgün Saklar, Mehmet Emin Çakırkaya
İşveren: ISG Uluslararası Havalimanı Yatırım Yapım ve İşletme AŞ
Yardımcı: Aydın Bilgi, Begüm Ülker, Ceren Erman, Alper Gürtekin, Ceylan Cöbek, Gülşen Geniş, Hüsne Cavlak, Mehtap Eray, Nazlı Melis Kocamanoğlu, Öznur Emin Ceylan, Serra Özgüle, Tuğçe Torunlar
Ana Yüklenici: Nivak Danışmanlık ve Mimarlık
Alt Yüklenici: Nest Çelik
Proje Yöneticisi: Münevver Antzcak, Entegre Proje Yönetim Danışmanlık
Statik Projesi: Arup Mühendislik
Mekanik Projesi: Dinamik Proje Mühendislik
Elektrik Projesi: Enmar Mühendislik
Yangın Tahliye Projesi: Etik Mühendislik
Mimari Mesleki Kontrollük: Tekeli-Sisa Mimarlık Ortaklığı
Şantiye Yöneticisi: Mete Bezircioğlu, Nivak Danışmanlık
Proje Başlangıç Yılı: 2016
Proje Bitiş Yılı: 2017
İnşaat Başlangıç Yılı: 2017
İnşaat Bitiş Yılı: 2018
Toplam İnşaat Alanı: 25,440 m²